ᐅ Defekte Wasserleitungen in Villa, welche Schadenersatzleistung
Erstellt am: 17.03.16 19:47
P
Payday
moin
wir haben ende oktober unsere stadtvilla fertig gestellt und sind eingezogen. recht fix stellte sich heraus, das im erdgeschoss das warmwasser in der Küche und Gäste-WC ewig dauert. laut planungsunterlagen hätte das keine 3sek dauern dürfen, bis warmes wasser kommt. es wurde offiziell ausgemessen, es dauert in der küche 25sek und 3,7liter, bis warmes wasser kommt. schuld ist die fehlende ringleitung. der Sanitär gibt seinen fehler zu und fragte uns nun, ob wir diesen Mangel beseitigt haben wollen oder stattdessen geld.
gemacht werden muss:
vom flur muss die leitung freigelegt werden und etwa 1,5meter neu verlegt werden durch eine Wand richtung Hauswirtschaftsraum. die Fliesen müssen dafür zerstört werden in Hauswirtschaftsraum und flur (jeweils teilweise), der Estrich muss wohl auch an den besagten stellen raus. dann wird eine neue leitung gelegt, so das die jetzige zu lange leitung mit in die warmwasserzirkulation im obergeschoss integriert wird. anschließend muss halt alles wieder hergestellt werden wie es vorher war. wir haben noch ein paar fliesen über, würden diese dann nehmen und von ihn dann ein neues paket anfordern (wegen farbunterschiede...).
klingt für mich nicht ganz einfach und auch nicht billig. stattdessen bietet er auch geld an. was haltet ihr für sowas angemessen? er meinte er würde für 20jahre den mehrverbrauch anrechnen. was ist aber mit wertminderung der immobilie? weil das ist ein mangel und beim verkauf müssen wir den angeben (weil wir ihn ja auch kennen....). große probleme bereitet er nicht, in der küche warmwasser ist ja nett, dank induktion geht das aber eh schneller so warm 🙂 und im gästebad, naja man kann ja vorm besuch einfach mal 30sek aufdrehen. ab dann läufts ja...
wieviel geld würdet ihr für angemessen halten? und ja ich weis das es als unbeteiligter immer leicht redet mit "auf jeden fall machen lassen".
wir haben ende oktober unsere stadtvilla fertig gestellt und sind eingezogen. recht fix stellte sich heraus, das im erdgeschoss das warmwasser in der Küche und Gäste-WC ewig dauert. laut planungsunterlagen hätte das keine 3sek dauern dürfen, bis warmes wasser kommt. es wurde offiziell ausgemessen, es dauert in der küche 25sek und 3,7liter, bis warmes wasser kommt. schuld ist die fehlende ringleitung. der Sanitär gibt seinen fehler zu und fragte uns nun, ob wir diesen Mangel beseitigt haben wollen oder stattdessen geld.
gemacht werden muss:
vom flur muss die leitung freigelegt werden und etwa 1,5meter neu verlegt werden durch eine Wand richtung Hauswirtschaftsraum. die Fliesen müssen dafür zerstört werden in Hauswirtschaftsraum und flur (jeweils teilweise), der Estrich muss wohl auch an den besagten stellen raus. dann wird eine neue leitung gelegt, so das die jetzige zu lange leitung mit in die warmwasserzirkulation im obergeschoss integriert wird. anschließend muss halt alles wieder hergestellt werden wie es vorher war. wir haben noch ein paar fliesen über, würden diese dann nehmen und von ihn dann ein neues paket anfordern (wegen farbunterschiede...).
klingt für mich nicht ganz einfach und auch nicht billig. stattdessen bietet er auch geld an. was haltet ihr für sowas angemessen? er meinte er würde für 20jahre den mehrverbrauch anrechnen. was ist aber mit wertminderung der immobilie? weil das ist ein mangel und beim verkauf müssen wir den angeben (weil wir ihn ja auch kennen....). große probleme bereitet er nicht, in der küche warmwasser ist ja nett, dank induktion geht das aber eh schneller so warm 🙂 und im gästebad, naja man kann ja vorm besuch einfach mal 30sek aufdrehen. ab dann läufts ja...
wieviel geld würdet ihr für angemessen halten? und ja ich weis das es als unbeteiligter immer leicht redet mit "auf jeden fall machen lassen".
Malli schrieb:
Daher war mein Ansatz mit Hotel nicht als Ausgleich gedacht, sondern als Notwendigkeit, wenn das Haus keinen Seiteneingang hat.
Den Seitenhieb auf meinen Beruf find ich daher an dieser Stelle völlig unnötig, schon gar von einem Moderator.Jeder macht Fehler, egal in welchem Beruf. Es is einfach menschlich. Warum man jedoch einen Berufsstand ausquetschen soll, während ein anderer Berufstand Fehler machen kann, und das meist ohne dafür belangt zu werden ist mir unverständlich. Ich könne hier einige Beispiele von Ärztefehler im näheren Bekannten und Verwandtenkreis aufführen, die nicht ausgeglichen wurden, das würde hier aber zu weit führen.
Warum man wegen einem zugegebenen Fehler "ausrasten" muß, verstehe ich nicht, genauso, warum man unbedingt ein "rundumsorglos" Hotel benötigt, statt einer Ferienwohnung, sofern das Haus tatsächlich für die Zeit nicht bewohnbar ein sollte.
also wir haben uns natürlich schon etwas geärgert, vor allen aber erstmal wegen den miesen schlechten ausreden vom Sanitär zwecks das sei normal usw... erst nachdem ich direkt das bauunternehmen dank der planungsunterlagen belegen konnte, das wirklich was in argen liegt, will man nun was machen. geplant war ja eine ringleitung, so das es ein leichtes gewesen wäre, die zirkulation zu integrieren (warum auch immer man es nicht gleich so gemacht hat...). die haben sich einfach ein stück leitung geschenkt, welche nun nachkommen muss.
bewohnbar ist das haus natürlich weiterhin. es ist ja nun nicht so, das die den ganzen flur aufreissen. denke mal so 4-5 fliesen werden es werden (quer zur normalen laufrichtung), so das man sogar übers loch hinwegsteigen kann. und nach feierabend kommt ne platte drüber. lange kanns ja eh nicht dauern. mit richtig abgestimmten gewerken müßte das in 2-3tagen durch sein.
beim vor ort termin werden wir noch abstimmen, ob es nicht auch möglich wäre über die vorwandinstallation im gästebad zurück in den Hauswirtschaftsraum zu gehen. dann müßte nur eine wandfliese im gästebad runter und der Estrich bleibt intakt. einmal durch die wand kernbohren. am ende muss die vorwand wieder hergestellt werden +1fliese und fertig.
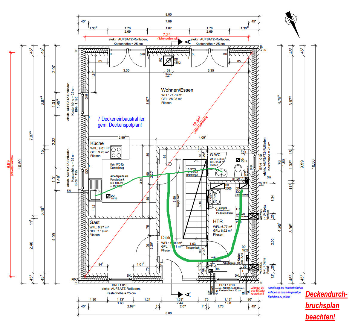
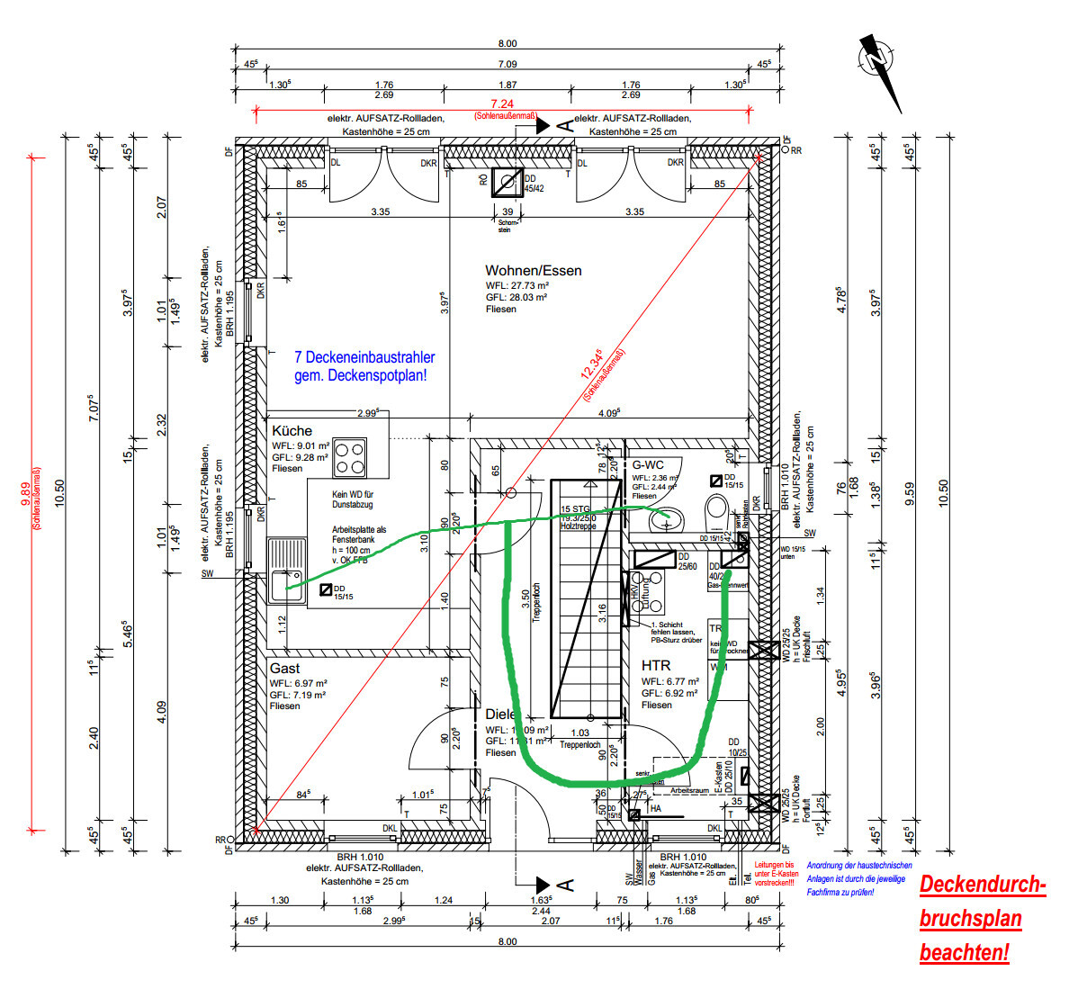
anbei ein bild wie der Sanitär es zugegeben hat, verlegt zu haben. dicker strich größerer rohrdurchmesser, dünner strich glaub 12x1 leitung. wenn mich nicht alles irrt müßten es alles kupferleitungen sein.

bewohnbar ist das haus natürlich weiterhin. es ist ja nun nicht so, das die den ganzen flur aufreissen. denke mal so 4-5 fliesen werden es werden (quer zur normalen laufrichtung), so das man sogar übers loch hinwegsteigen kann. und nach feierabend kommt ne platte drüber. lange kanns ja eh nicht dauern. mit richtig abgestimmten gewerken müßte das in 2-3tagen durch sein.
beim vor ort termin werden wir noch abstimmen, ob es nicht auch möglich wäre über die vorwandinstallation im gästebad zurück in den Hauswirtschaftsraum zu gehen. dann müßte nur eine wandfliese im gästebad runter und der Estrich bleibt intakt. einmal durch die wand kernbohren. am ende muss die vorwand wieder hergestellt werden +1fliese und fertig.
anbei ein bild wie der Sanitär es zugegeben hat, verlegt zu haben. dicker strich größerer rohrdurchmesser, dünner strich glaub 12x1 leitung. wenn mich nicht alles irrt müßten es alles kupferleitungen sein.
Moin Moin
In diesem Fall hätte ich eine Verlegung vom Trinkwasserwärmer auf kürzestem Weg, das wären hier gut 7 m zur Küche u. 2 zum WC verlegt. Ohne Zirkulation.
Es scheint so als hatte da einer keine Lust die 3 Bohrungen auszuführen oder hatte den Überblick da nicht.
Die sinnvolle Lösung jetzt hast Du ja schon genannt. Vom WT Gäste-WC durch die Wand in den Hauswirtschaftsraum. Das ist ja nun nicht wirklich ein Problem. Die etwa 4 m Leitung zur Küchenspüle ist dann eine Stichleitung o. Zirkulation. Passt so
Olli
In diesem Fall hätte ich eine Verlegung vom Trinkwasserwärmer auf kürzestem Weg, das wären hier gut 7 m zur Küche u. 2 zum WC verlegt. Ohne Zirkulation.
Es scheint so als hatte da einer keine Lust die 3 Bohrungen auszuführen oder hatte den Überblick da nicht.
Die sinnvolle Lösung jetzt hast Du ja schon genannt. Vom WT Gäste-WC durch die Wand in den Hauswirtschaftsraum. Das ist ja nun nicht wirklich ein Problem. Die etwa 4 m Leitung zur Küchenspüle ist dann eine Stichleitung o. Zirkulation. Passt so
Olli
H
HilfeHilfe18.03.16 07:19ich würde es machen lassen. 20-30 Jahre immer auf das warme zu warten würde mich immer ärgern warum hab ich das nicht machen lassen. meine persönliche meinung.
Ja es ist blöd das nochmal die Handwerker im haus sind und nacharbeiten. aber ist es euch wirklich nicht wert und stattdessen jahre zu ärgern ?
wir haben jetzt 1 woche keine couch weil möbelhaus nicht geliefert hat. Erst hat frau großes drama gemacht wo wir sitzen sollen , dann habe ich ihr idomeni gezeigt und gefragt ob schlamm besser wäre,. Jetzt ist es ganz witzig auf kissen auf dem boden zu lümmeln
Ja es ist blöd das nochmal die Handwerker im haus sind und nacharbeiten. aber ist es euch wirklich nicht wert und stattdessen jahre zu ärgern ?
wir haben jetzt 1 woche keine couch weil möbelhaus nicht geliefert hat. Erst hat frau großes drama gemacht wo wir sitzen sollen , dann habe ich ihr idomeni gezeigt und gefragt ob schlamm besser wäre,. Jetzt ist es ganz witzig auf kissen auf dem boden zu lümmeln
ach so....
ja natürlich machen lassen.
Der Installateur kommt morgens um acht, legt die Leitung frei, bohrt durch die Wand und legt die Leitung durch die Wand. Der Fliesenleger erscheint um elf und beginnt seine Arbeiten während im Technikraum die Pumpe montiert und Rohrleitungen gelegt werden.
Wer als Bauherr möchte geht während dessen einen Kaffee trinken oder zum Arzt.
Einen Hotelaufenthalt braucht es da nicht;). Der Kaffee geht dann auch gerne auf mich.
Olli
ja natürlich machen lassen.
Der Installateur kommt morgens um acht, legt die Leitung frei, bohrt durch die Wand und legt die Leitung durch die Wand. Der Fliesenleger erscheint um elf und beginnt seine Arbeiten während im Technikraum die Pumpe montiert und Rohrleitungen gelegt werden.
Wer als Bauherr möchte geht während dessen einen Kaffee trinken oder zum Arzt.
Einen Hotelaufenthalt braucht es da nicht;). Der Kaffee geht dann auch gerne auf mich.
Olli
Ähnliche Themen