ᐅ Deckenauslässe für Kontrollierte-Wohnraumlüftung, ist das korrekt ?
Erstellt am: 02.06.19 13:22
T
tumaa
Hallo zusammen,
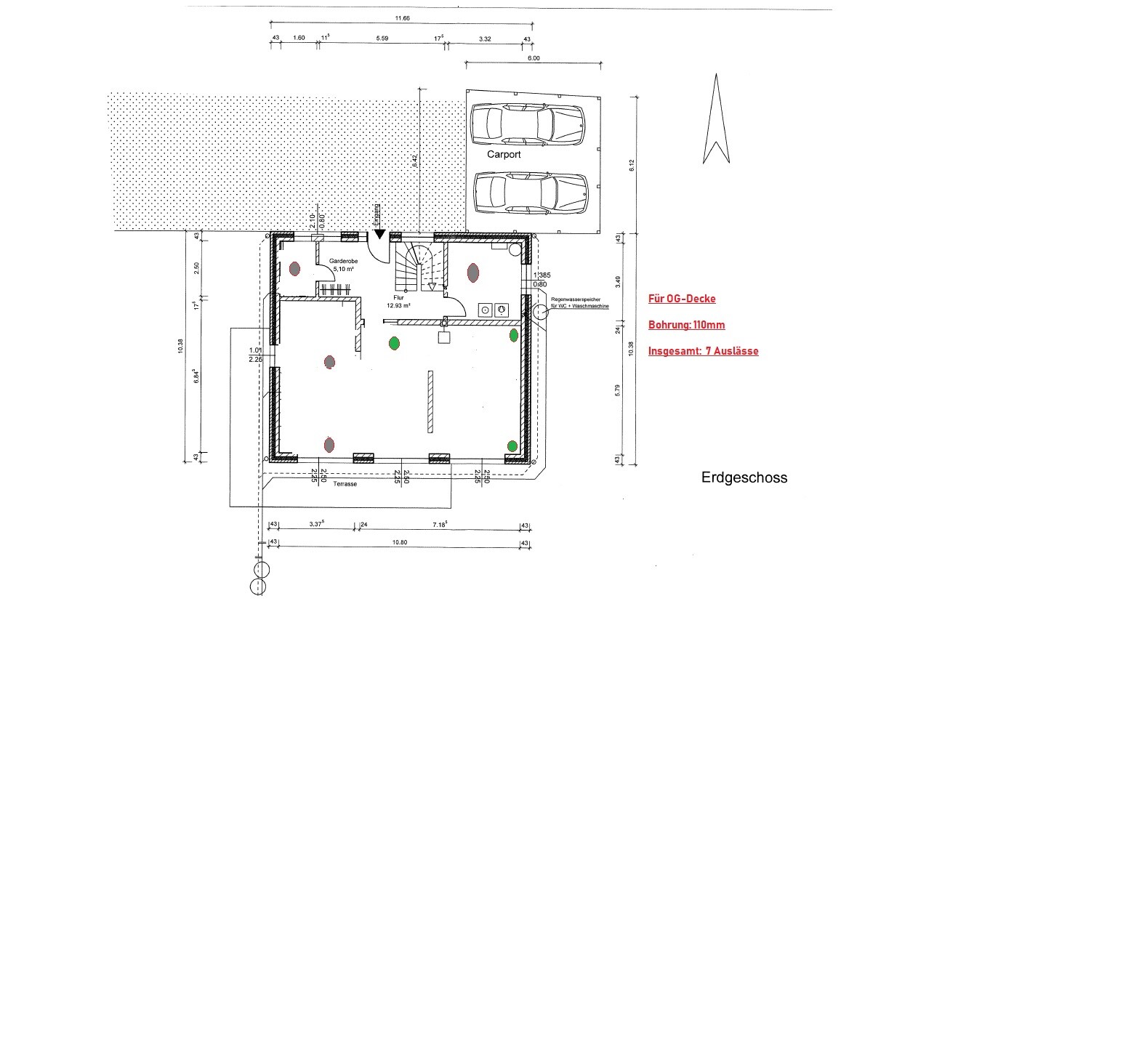
die Betondecke muss bestellt werden und ich soll dem Bauleiter mitteilen, wo die Auslässe für die Kontrollierte-Wohnraumlüftung sein sollen.
Anfangs waren 100er Wickelfalzrohre geplant, doch dadurch wird die Betondecke teurer etc........jetzt plane ich es mit Flachkanäle.
Der Dachboden soll auch ausgebaut werden.
Es jetzt mit 6 Zuluft und 6 Abluft geplant.
EG:
1 Abluft wird direkt im Hauswirtschaftsraum sein
2 Abluft (Gäste-Wc und Küche)
1 Zuluft (Wohnbereich)
OG:
1 Abluft für Bad
4 Zuluft für Schlafzimmer
Dachboden:
2 Abluft (Abstellraum und Bad)
1 Zuluft für Zimmer
Passt das ? Danke!






die Betondecke muss bestellt werden und ich soll dem Bauleiter mitteilen, wo die Auslässe für die Kontrollierte-Wohnraumlüftung sein sollen.
Anfangs waren 100er Wickelfalzrohre geplant, doch dadurch wird die Betondecke teurer etc........jetzt plane ich es mit Flachkanäle.
Der Dachboden soll auch ausgebaut werden.
Es jetzt mit 6 Zuluft und 6 Abluft geplant.
EG:
1 Abluft wird direkt im Hauswirtschaftsraum sein
2 Abluft (Gäste-Wc und Küche)
1 Zuluft (Wohnbereich)
OG:
1 Abluft für Bad
4 Zuluft für Schlafzimmer
Dachboden:
2 Abluft (Abstellraum und Bad)
1 Zuluft für Zimmer
Passt das ? Danke!
tumaa schrieb:
PS: Als Gerät wurde mir ein Rotationswärmetauscher empfohlen.Warum? Weil diese besonders wartungsanfällig sind und gerne mal kaputtgehen? Des weiteren auch eine unerwünschte Vermischung von Abluft und Zuluft zulassen und auch noch Strom verbrauchen im Gegensatz zu einem üblichen Kreuzwärmetauscher?
B
boxandroof10.06.19 22:32tumaa schrieb:
PS: Als Gerät wurde mir ein Rotationswärmetauscher empfohlen.Hat Vor- und Nachteile. Eher unüblich, aber kann man aber machen. Sehe es weniger kritisch als Mycraft. Wichtiger ist, dass Du einen kompetenten Lüftungsbauer hast.Hatte ich vergessen zu schreiben, die Kontrollierte-Wohnraumlüftung ist auch platztechnischen für den Dachboden geplant, gibt es eigentlich dann Bedenken zum Zimmer, bzgl. Geräuschpegel ?
-----------------------------------------------------
Ich denke aus technischer Sicht, macht es mehr Sinn, wenn er sich dazu äußért ...waren mehrere Aspekte.
Gruß
-----------------------------------------------------
Mycraft schrieb:
Warum? Weil diese besonders wartungsanfällig sind und gerne mal kaputtgehen? Des weiteren auch eine unerwünschte Vermischung von Abluft und Zuluft zulassen und auch noch Strom verbrauchen im Gegensatz zu einem üblichen Kreuzwärmetauscher?
Ich denke aus technischer Sicht, macht es mehr Sinn, wenn er sich dazu äußért ...waren mehrere Aspekte.
Gruß
B
boxandroof10.06.19 23:01tumaa schrieb:
Hatte ich vergessen zu schreiben, die Kontrollierte-Wohnraumlüftung ist auch platztechnischen für den Dachboden geplant, gibt es eigentlich dann Bedenken zum Zimmer, bzgl. Geräuschpegel ?Dachboden ist beheizt?boxandroof schrieb:
Dachboden ist beheizt?Dämmung wird unterhalb der Dachhaut sein.
Anfangs wird das nur das nötigste auf dem Db gemacht, später entsteht dort ein Zimmer.
Ähnliche Themen