Hallo,
ich möchte eine tragende Wand öffnen. Dafür muss ich die aktuell noch bestehende Wand gem. Statiker wie folgt abstützen: Im Abstand von max. 60cm zur Wand sollen alle max. 100cm Baustützen aufgestellt werden und die Betondecke damit und 12x12 Kantholz abgestützt werden.
Jetzt habe ich angefangen die Unterkonstruktion abzureißen, damit ich an die Betondecke komme. Nun ist mir aufgefallen, dass die meiner laienhaften Auffassung nach tragenden Elemente (hellgrau, glatt, GRÜN markiert) der Decke eine eingefasste Dachlatte haben (im Bild von links nach rechts erkennbar, dunkleres Holz, GELB markiert). Das Kantholz für die Baustützen soll ziemlich genau dahin, wo momentan noch die 3 Dachlatten (im Bild von vorne nach hinten verlaufend, helleres Holz, ROT markiert) sind.
Meine Frage: Kann ich das Kantholz auf die gelb markierten Dachlatten auflegen? Habe ein wenig die Befürchtung, dass die die Last der Decke, die vorher durch die tragende Wand gehalten wurde, nicht aushalten bzw. nicht ideal an das Kantholz weitergeben. Oder müssen diese ab und das Kantholz muss direkt auf die gelb markierten Träger angelegt werden?
Vielen Dank schon mal!
Felix

ich möchte eine tragende Wand öffnen. Dafür muss ich die aktuell noch bestehende Wand gem. Statiker wie folgt abstützen: Im Abstand von max. 60cm zur Wand sollen alle max. 100cm Baustützen aufgestellt werden und die Betondecke damit und 12x12 Kantholz abgestützt werden.
Jetzt habe ich angefangen die Unterkonstruktion abzureißen, damit ich an die Betondecke komme. Nun ist mir aufgefallen, dass die meiner laienhaften Auffassung nach tragenden Elemente (hellgrau, glatt, GRÜN markiert) der Decke eine eingefasste Dachlatte haben (im Bild von links nach rechts erkennbar, dunkleres Holz, GELB markiert). Das Kantholz für die Baustützen soll ziemlich genau dahin, wo momentan noch die 3 Dachlatten (im Bild von vorne nach hinten verlaufend, helleres Holz, ROT markiert) sind.
Meine Frage: Kann ich das Kantholz auf die gelb markierten Dachlatten auflegen? Habe ein wenig die Befürchtung, dass die die Last der Decke, die vorher durch die tragende Wand gehalten wurde, nicht aushalten bzw. nicht ideal an das Kantholz weitergeben. Oder müssen diese ab und das Kantholz muss direkt auf die gelb markierten Träger angelegt werden?
Vielen Dank schon mal!
Felix
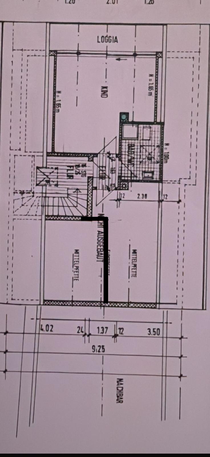
Die zu öffnende Wand ist wohl im Bild links (?), zeige dazu mal die Grundrisse dieser Etage und derjenigen darüber. Was soll denn der Nachfolger des entnommenen Wandstückes werden ?
https://www.instagram.com/11antgmxde/
https://www.linkedin.com/company/bauen-jetzt/
https://www.instagram.com/11antgmxde/
https://www.linkedin.com/company/bauen-jetzt/
Ähnliche Themen