Guten Morgen Zusammen,
wir zerbrechen uns schon einige Abende den Kopf mit dem Grundriss unseres Badezimmers. Die Außenwände des Hauses stehen bereits, die Innenwände können noch verschoben werden..
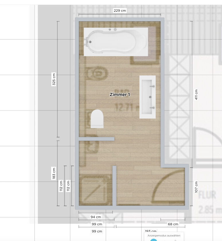
Mir gefällt dieser lange Schlauch als Bad nicht. Ebenfalls frage ich mich ob es nicht zu klein wäre, falls wir noch eine Badewanne dazu machen würden.
Leider sind wir Neulinge was einen Hausbau angeht und wir haben keine Idee wie man dieses Bad von der Anordnung gestalten könnte.
Hat jemand Anregungen, Tipps oder sonstige Infos worauf man achten sollte?
Ein großes Dankeschön vorab an alle die sich beteiligen!
wir zerbrechen uns schon einige Abende den Kopf mit dem Grundriss unseres Badezimmers. Die Außenwände des Hauses stehen bereits, die Innenwände können noch verschoben werden..
Mir gefällt dieser lange Schlauch als Bad nicht. Ebenfalls frage ich mich ob es nicht zu klein wäre, falls wir noch eine Badewanne dazu machen würden.
Leider sind wir Neulinge was einen Hausbau angeht und wir haben keine Idee wie man dieses Bad von der Anordnung gestalten könnte.
Hat jemand Anregungen, Tipps oder sonstige Infos worauf man achten sollte?
Ein großes Dankeschön vorab an alle die sich beteiligen!
Stacha. schrieb:
Ich tue mich mit dem Gedanken an ein längliches Bad trotzdem schwer muss ich sagen.Reihenhausgrundrisse sind keine Herrenhausgrundrisse *smile*https://www.instagram.com/11antgmxde/
https://www.linkedin.com/company/bauen-jetzt/
ypg schrieb:
Für wieviel Personen soll es denn sein?
Für 4 ? oder doch nur für 3?Gibt es hier drauf noch Antwort @Stacha. ?Und die genauen Maße sollten jetzt auch vorliegen 🙂
Oder wird das Haus jetzt doch nicht gebaut/gekauft?