Hausbau - Ratgeber
Bauherrenhilfe
- Bauherrenhilfe vor Vertragsabschluss
-- Warum einen unabhängigen Baubetreuer?
-- Vertragsgrundlagen
-- Bausumme
-- Zahlungsplan zur Kostenkontrolle
-- Pflichten des Bauherren vor Vertragsabschluss
-- Unterlagen beim Hausbau vor Vertragsabschluss
- Bauherrenhilfe nach Vertragsabschluss
-- Bauantrag bei Behörden
-- Bau-Genehmigungsverfahren bei Baubehörden
-- Bauspezifische Versicherungen
-- Bauzeitenplan
-- Baubeginn - die Letzten Pflichten der Bauherrschaft
- Bauherrenhilfe während der Bauzeit
- Gewährleistungsansprüche
- Bauabnahme
Baufinanzierung
- Baufinanzierung - Allgemeine Fragen
- Kreditarten
- Kredit-Konditionen
- Bausparen
- Staatliche Förderungen
- Verkehrswert
- Haushaltsrechnung und Bonität
Hausbau Planung
- Haustypen
- Hausbau Vorbereitungsarbeiten
- Das Baugrundstück
- Baugrund beim Hausbau
- Baurecht
- Gebäudeschutz
- Erdarbeiten und Wasserhaltung
- Stützmauern
- Einfriedung
- Untergeschoss
- Kanalisation
- Tragende Elemente
- Nichttragende Innenwände
- Fundation / Fundament
- Deckenkonstruktionen
- Dächer
- Kaminanlagen
- Treppen Rampen Leitern
- Dachbeläge und Spengler
- Fenster
- Sonnen und Wetterschutz
- Aussenputze
- Einbauten, Küchen, Türen
- Bodenbeläge und Unterlagsböden
- Parkett
- Gips, Wand, Decke
Haustechnik und Energie
- Heiztechnik
- Lüftung und Klimatechnik
- Sanitärtechnik
- Elektrotechnik
- Erneuerbare Energie
Whirlpools / Jacuzzi
Hausbau Magazin
- Baufinanzierung trotz Krise?
- Das Blockhaus
- Moderne Dämmstoffe im Vergleich
- Erker Vor- und Nachteile
- Glasflächen beim Hausbau
- Günstig ein Haus Bauen
- Mediterraner Hausbaustil
- Mehrgenerationenhaus
- Moderne Architektur
- Gartengestaltung leicht gemacht
- Traditioneller Ziegelbau
- Villa als höchster Traum
- Im Eigenheim Ruhestand geniessen
- Altbau sanieren
- Kauf einer Holzgarage
- Immobilienmakler
- Arbeitshandschuhe für den Winter
- Zuhause verschönern
- Outdoor-Plissees
- Schlafzimmer planen
- Terrassenüberdachung
- Wohngebäudeversicherung
- Girokonto für Bauherren finden
- Hauseingang gestalten
- Zaunarten und Eigenschaften
- Der perfekte Grundriss
- Sparsamer heizen im Altbau
- Einfamilienhaus smart finanzieren
- Planung einer PV-Anlage
- Neues Haus
- Immobilienfinanzierung
- Installation einer Photovoltaikanlage
- Asbest erkennen und entfernen
- Gartenpflege im Frühling – worauf achten
- Sauna im Fokus - Wellness zuhause
- Erfolgreich vermieten
- Die perfekte Winterbekleidung
- Das Niedrigenergiehaus
- Der April und seine Stürme
- Architektonische Vielfalt
- Ökologisch und nachhaltig bauen
- Das perfekte Schlafzimmer
- Nachhaltige Energieversorgung
- Zukunftsorientiert bauen
- Nachhaltigkeit beim Hausbau
- Tiny Houses
- Wärmepumpen als nachhaltige Heizvariante
- Maßgeschneiderten Kleiderschrank
- Der richtige Baukredit
- Ratgeber für erfolgreichen Hausbau
- Haus als Altersvorsorge
Do-it-yourself Anleitungen
- Verlegeanleitung für Bodenbeläge und Parkett
- Bodenbeläge und Parkett reinigen und pflegen
- Malerarbeiten am Haus
- Garten Tipps
- Umzug und Reinigung

ᐅ Badplanung Grundriss/Aufteilung 12 qm

Erstellt am: 13.03.24 16:31
M
Mulzius
Hallo zusammen!
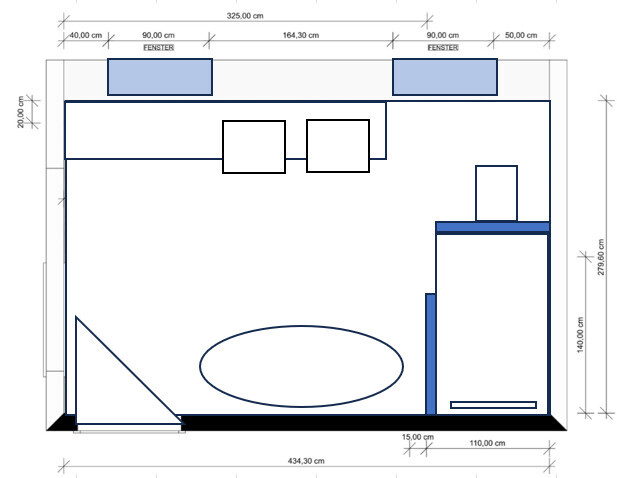
In unserem Neubau entsteht im OG ein rund 12 qm großes MasterBad (4Pers.Haushalt, es gibt ein 2.Bad), das Badewanne, Walk-in-Dusche (gemauert), waschtisch mit einem Waschbecken (1,2m) und Toilette beinhalten soll. Das Bad ist leider sehr schmal (2,79 m x 4,34 m), das macht die Planung nicht so einfach, lässt sich aber leider nicht mehr ändern. Auch sind 2 Türen im Bad - eine Schiebetür, eine Schwenktür (siehe Plan).

Unsere Badplanerin hat diese Planung gemacht (siehe Bild). Ich bin leider nicht glücklich mit der Position der Toilette frontal hinter der Tür - das ist schon sehr auf dem Präsentierteller. Eigentlich hatten wir den Wunsch, die Toilette etwas zu verstecken/weniger einsehbar zu machen. Auch den Waschtisch gegenüber der Fenster finde ich nicht ideal, bedenkt man den natürlichen Lichteinfall.

Die Außenwände (oben in der Zeichnung, Norden) sind Massivholz mit zwei Fenstern (Brüstungshöhe 1,1m); In der Massivholzwand kann nur mit einer Vorwand Installation untergebracht werden. Die Wand unten/Süden ist etwa 3,6 m hoch, da offener Dachstuhl.

So, das sollten hoffentlich alle wichtigen Infos sein. Nun hoffe ich, dass ihr noch Ideen habt, wie wir es anders aufteilen könnten und das Klo

idealerweise auch mehr verstecken? Danke für eure Erfahrungen!


2D-Badgrundriss mit Badewanne, Toilette und Waschbecken im Obergeschoss
H
hanghaus2023
15.03.24 10:27
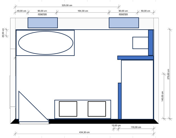
Hier mal noch ein Vorschlag.


2D-Grundriss eines Wohnraums mit Fenstern, Türen und Möbeln.

Hier noch der Entwurf von @ypg


Grundriss eines Raumes: Fenster oben, ovaler Teppich unten, blaue Möbel rechts, zwei Quadrate oben.


Die Toi funktioniert schon. Hatte mich da wohl vermessen.
H
hanghaus2023
15.03.24 12:37
@Mulzius haben Dich die Vorschläge erschlagen? Oder lebst Du noch?
M
Mulzius
20.03.24 08:41
Danke für eure Vorschläge! Wir gehen gerade im Planungsstress etwas unter, tut mir leid.
M
motorradsilke
20.03.24 16:58
Mulzius schrieb:

Danke für deine Idee! Das hatten wir schon versucht, da meinte die Badplanerin, dass das WC nass werden kann....

Wir haben die Anordnung Dusche/Toi auch so (die Toi allerdings diagonal gesetzt) und unser Bad ist 3 m breit an der Stelle. Da wir die Toi kein bißchen nass. Bei dir sind es 20 cm weniger, aber auch bis dahin spritzt bei uns kein Wasser. Das Wasser spritzt bis ein paar cm aus der Dusche (unsere ist 1,50 m lang). Und selbst wenn die Toi mal ein paar Tropfen abbekommt, das macht der nichts.
Ich würde diese Variante nehmen. Alles andere wirkt gequetscht und erdrückend, aus meiner Sicht. Und mit dem Rücken zur Tür würde ich auf keinen Fall auf der Toi sitzen wollen.
dusche