NanDe schrieb:
Also so?:

Hier schaut man dann aber aus der Badewanne auch wieder auf das WC.
...
Irgendwas ist immer, hab ich das Gefühl :-(Ich habe damit auch kein Problem, das waren andere hier [emoji6]
Ich weiß ja nicht, was Du so in der Wanne machst, aber ich halte meinen Kopf meist im Nacken und habe die Augen zu. Dann und wann sitze ich auch, aber da habe ich meist Schaum im Auge. Und wenn ich schaue, dann gewiss nicht kontrolliert zur Toilette.
Bei mir ist aber auch der Deckel zu... und drinnen sauber [emoji23]
Was ich aber weiß: bei der Wanne braucht man Ablage, und dafür ist die 2,80 zu knapp.
Die Forumsmeinung ist auch nicht bestimmend, insofern solltest Du Dich an _der_ Antwort orientieren, in der Du Dich siehst.
toxicmolotow schrieb:
Das letzte sieht gut aus. War ja auch meine Idee. Leider kann ich hier gerade nicht malen, aber m.E. fehlt da nur der Feinschliff.
Was für eine Duschtasse kommt da hin und wie ist die Türe von der Dusche geplant.
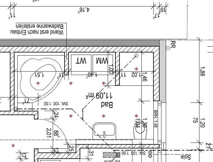
Kann ich den Plan mal bemaßt haben? Dann male ich was mit meinen Paint Skills auf Lv. -6.Wir möchten eine bodentiefe geflieste offene Dusche ohne Tür. Die Duschtasse habe ich nur zur Darstellung ausgewählt. Ich habe leider keinen vermassten Plan. Es steht nur 4 x 2,8 fest. Das Fenster und die Tür ist noch änderbarT
toxicmolotof28.11.17 01:00NanDe schrieb:
...bodentiefe geflieste offene Dusche ohne Tür.Okay, bodentief passt, kein Problem. Ohne Tür? Vergiss dass mit deinen Maßen. Dir wird die Suppe bis zum Klo laufen. Okay, die Formulierung war jetzt etwas radikal, aber ich weiß wovon ich spreche. Die Theorie, dass Wasser sich auf 100x100cm verteilt und dort bleibt funktioniert nur so lange, wie kein Körper drin steht.
Ich rate dir dringend dazu, mindestens 120, wenn nicht sogar 140 cm zu nehmen. Oder vielleicht doch eine Glastüre. Mit 4x2,8 kann man schon jede Menge reißen.
Hier mal mein Vorschlag, aber bitte darauf achten, dass die Nische fürs WC nicht zu klein wird. So könnte es dann aber mit dem "ohne Tür" klappen.
Im Prinzip könntet ihr sogar den Waschtisch samt blauer Wand noch 20-30 cm in den Raum nach unten ziehen. Das ist dann eine riesige Dusche.
Sorry für die Überskills.
Vielleicht fällt mir noch was ein, was man machen könnte. Eigentlich kann man mit dem Platz sehr viel machen. Auch sowas, oder etwas mit einer leicht (oder stark) schrägen Wanne links oben...
Ach, hier übrigens ein Bad mit ähnlichen Maßen, wenn auch etwas mehr Ecken...
T
toxicmolotof28.11.17 11:48Die obere Variante hat ein T, nur nenne ich es so eben L. Und die untere Variante hat ein das T auseinandergerissen. Nun sind es zwei I. Vielleicht ergänzt... Das rote I gibt's au in halb hoch. Quasi nicht I sondern i.
Ähnliche Themen