Hausbau - Ratgeber
Bauherrenhilfe
- Bauherrenhilfe vor Vertragsabschluss
-- Warum einen unabhängigen Baubetreuer?
-- Vertragsgrundlagen
-- Bausumme
-- Zahlungsplan zur Kostenkontrolle
-- Pflichten des Bauherren vor Vertragsabschluss
-- Unterlagen beim Hausbau vor Vertragsabschluss
- Bauherrenhilfe nach Vertragsabschluss
-- Bauantrag bei Behörden
-- Bau-Genehmigungsverfahren bei Baubehörden
-- Bauspezifische Versicherungen
-- Bauzeitenplan
-- Baubeginn - die Letzten Pflichten der Bauherrschaft
- Bauherrenhilfe während der Bauzeit
- Gewährleistungsansprüche
- Bauabnahme
Baufinanzierung
- Baufinanzierung - Allgemeine Fragen
- Kreditarten
- Kredit-Konditionen
- Bausparen
- Staatliche Förderungen
- Verkehrswert
- Haushaltsrechnung und Bonität
Hausbau Planung
- Haustypen
- Hausbau Vorbereitungsarbeiten
- Das Baugrundstück
- Baugrund beim Hausbau
- Baurecht
- Gebäudeschutz
- Erdarbeiten und Wasserhaltung
- Stützmauern
- Einfriedung
- Untergeschoss
- Kanalisation
- Tragende Elemente
- Nichttragende Innenwände
- Fundation / Fundament
- Deckenkonstruktionen
- Dächer
- Kaminanlagen
- Treppen Rampen Leitern
- Dachbeläge und Spengler
- Fenster
- Sonnen und Wetterschutz
- Aussenputze
- Einbauten, Küchen, Türen
- Bodenbeläge und Unterlagsböden
- Parkett
- Gips, Wand, Decke
Haustechnik und Energie
- Heiztechnik
- Lüftung und Klimatechnik
- Sanitärtechnik
- Elektrotechnik
- Erneuerbare Energie
Whirlpools / Jacuzzi
Hausbau Magazin
- Baufinanzierung trotz Krise?
- Das Blockhaus
- Moderne Dämmstoffe im Vergleich
- Erker Vor- und Nachteile
- Glasflächen beim Hausbau
- Günstig ein Haus Bauen
- Mediterraner Hausbaustil
- Mehrgenerationenhaus
- Moderne Architektur
- Gartengestaltung leicht gemacht
- Traditioneller Ziegelbau
- Villa als höchster Traum
- Im Eigenheim Ruhestand geniessen
- Altbau sanieren
- Kauf einer Holzgarage
- Immobilienmakler
- Arbeitshandschuhe für den Winter
- Zuhause verschönern
- Outdoor-Plissees
- Schlafzimmer planen
- Terrassenüberdachung
- Wohngebäudeversicherung
- Girokonto für Bauherren finden
- Hauseingang gestalten
- Zaunarten und Eigenschaften
- Der perfekte Grundriss
- Sparsamer heizen im Altbau
- Einfamilienhaus smart finanzieren
- Planung einer PV-Anlage
- Neues Haus
- Immobilienfinanzierung
- Installation einer Photovoltaikanlage
- Asbest erkennen und entfernen
- Gartenpflege im Frühling – worauf achten
- Sauna im Fokus - Wellness zuhause
- Erfolgreich vermieten
- Die perfekte Winterbekleidung
- Das Niedrigenergiehaus
- Der April und seine Stürme
- Architektonische Vielfalt
- Ökologisch und nachhaltig bauen
- Das perfekte Schlafzimmer
- Nachhaltige Energieversorgung
- Zukunftsorientiert bauen
- Nachhaltigkeit beim Hausbau
- Tiny Houses
- Wärmepumpen als nachhaltige Heizvariante
- Maßgeschneiderten Kleiderschrank
- Der richtige Baukredit
- Ratgeber für erfolgreichen Hausbau
- Haus als Altersvorsorge
Do-it-yourself Anleitungen
- Verlegeanleitung für Bodenbeläge und Parkett
- Bodenbeläge und Parkett reinigen und pflegen
- Malerarbeiten am Haus
- Garten Tipps
- Umzug und Reinigung

ᐅ Badezimmergestaltung Neubau ca. 10m²

Erstellt am: 06.01.22 12:14
S
Steffen47a
Hallo,
Wir bauen gerade neu und suchen Ideen wie wir alles im Badezimmer unter bekommen.
Bedingungen:
Badewanne
Belegbahre Dusche mit gemauerter Duschwand (ca. 110breitx130cm lang)
Vorwand(ca. 140cm breit mit Waschtisch)

Ideen?

Grundriss eines Raums mit unregelmäßigen Wänden, Beschriftung A–F, Maßlinien und 10,7 m².
S
Steffen47a
06.01.22 20:03
ypg schrieb:

So ist es. Aber hier muss man ja aus einem Raum etwas machen, über dem anscheinend überhaupt nicht nachgedacht wurde.
...aber wahrscheinlich sind wir in den Augen des TEs nur stets bemüht 😉 Denn fürs Mühe geben sollte es zumindest ein Like geben (nicht, dass ich da hinter her bin...)

Ich bin nicht wirklich oft in Foren unterwegs und habe nicht Mal gewusst, dass man einen Daumen verteilen kann.
Bei deinen Varianten ist uns leider die Dusche zu schmal.
Und eine Tür nach außen möchte meine Frau nicht.
Dennoch vielen Dank für Anregungen
M
Myrna_Loy
06.01.22 21:20
Steffen47a schrieb:

Bisher nur dieses hier ..
Etwas leihenhaft erstellt
Ich find den Entwurf gut! Ich dusche mich nach dem Baden zB gerne ab, da ist die Anordnung prima. Man müsst enur schauen, dass die Fenster nicht zu viele Blicke erlauben. Sonst weiß der NAchbar, auf wieviel Grad der Duschthermostat steht. 🙂
S
Steffen47a
06.01.22 21:27
Myrna_Loy schrieb:

Ich find den Entwurf gut! Ich dusche mich nach dem Baden zB gerne ab, da ist die Anordnung prima. Man müsst enur schauen, dass die Fenster nicht zu viele Blicke erlauben. Sonst weiß der NAchbar, auf wieviel Grad der Duschthermostat steht. 🙂
Das Fenster muss natürlich durch Plissee oder Milchglas abgedunkelt werden...
S
Steffen47a
06.01.22 21:53
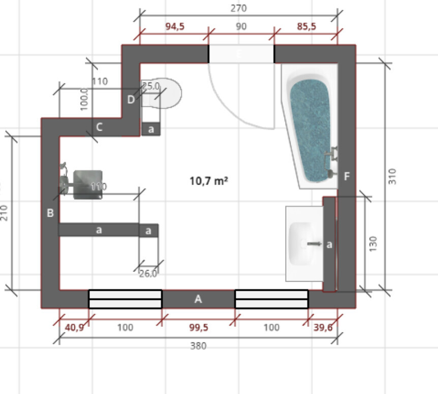
Was haltet ihr hiervon?
Die Ecke unter der Dusche würde für einen Schrank benutzt werden.
Kann man die Toilette in die Ecke bekommen? Anschlusstechnisch...

Grundriss eines Badezimmers mit Badewanne, Waschbecken und Maßen (10,7 m²)
Y
ypg
06.01.22 21:56
Steffen47a schrieb:

Was haltet ihr hiervon?
Die Ecke unter der Dusche würde für einen Schrank benutzt werden.
Kann man die Toilette in die Ecke bekommen? Anschlusstechnisch...
Dann nimm bitte lieber deinen ersten - die Wand vorm Fenster macht das ganze Haus unverkäuflich.
M
Myrna_Loy
06.01.22 21:58
Steffen47a schrieb:

Was haltet ihr hiervon?
Die Ecke unter der Dusche würde für einen Schrank benutzt werden.
Kann man die Toilette in die Ecke bekommen? Anschlusstechnisch...
Nix. Ich finde beim ersten Entwurf auch schön, dass man aus der Wanne raus einen Ausblick haben kann. Ich mag die Linien der Anordnung auch - ohne seltsame Abschrägungen oder Winkel.
duschefensterentwurf