Guten Abend!
Ich hoffe einfach mal auf Schwarmhilfe. Wir möchten ein Zweifamilienhaus erweitern- zur Auswahl stand uns seinerzeit ein Anbau oder mittels leichter Erhöhung des Kniestocks ein nutzbares Dachgeschoss herzustellen. Gegen Ersteres hatte ich große Bedenken, weil ich quasi noch nie einen attraktiven Anbau gesehen habe. Dann hat mir der Architekt einen Entwurf geschickt, den ich einigermaßen toll fand. Wie sich dann herausgestellt hat, funktioniert das statisch aber nur mit so vielen Kompromissen, dass es wieder Mist ist. Jetzt schaue ich seit einigen Tagen auf diese Ansicht und finde es zunehmend schlimmer. Es sieht aus wie eine Garage. Das ist jedoch nicht alles- was ein Schattenplatz werden sollte, ist leider nur 1,7m hoch. Passt dann aber wieder zum Balkon, weil der auf die gleiche Breite gestutzt wurde.
Alle Beteiligten, also wir und der Architekt, verstehen uns prinzipiell gut, sind aber gerade etwas voneinander gestresst. Wie geht man mit so einer Situation um? Wie im Übrigen der Wildwuchs an Fenster in der Gartenansicht zustande gekommen ist, ist uns auch gerade noch ein Rätsel.


Ich hoffe einfach mal auf Schwarmhilfe. Wir möchten ein Zweifamilienhaus erweitern- zur Auswahl stand uns seinerzeit ein Anbau oder mittels leichter Erhöhung des Kniestocks ein nutzbares Dachgeschoss herzustellen. Gegen Ersteres hatte ich große Bedenken, weil ich quasi noch nie einen attraktiven Anbau gesehen habe. Dann hat mir der Architekt einen Entwurf geschickt, den ich einigermaßen toll fand. Wie sich dann herausgestellt hat, funktioniert das statisch aber nur mit so vielen Kompromissen, dass es wieder Mist ist. Jetzt schaue ich seit einigen Tagen auf diese Ansicht und finde es zunehmend schlimmer. Es sieht aus wie eine Garage. Das ist jedoch nicht alles- was ein Schattenplatz werden sollte, ist leider nur 1,7m hoch. Passt dann aber wieder zum Balkon, weil der auf die gleiche Breite gestutzt wurde.
Alle Beteiligten, also wir und der Architekt, verstehen uns prinzipiell gut, sind aber gerade etwas voneinander gestresst. Wie geht man mit so einer Situation um? Wie im Übrigen der Wildwuchs an Fenster in der Gartenansicht zustande gekommen ist, ist uns auch gerade noch ein Rätsel.
N
Nice-Nofret19.04.21 11:18Mir gefällt die lebendige Außenfassade gar nicht schlecht; und ja, da kann man noch einwenig optimieren- die immergleichen eintönigen 'anstatt-Stadt-Villen' gehen mir gewalltig auf die Nerven - da ist bei aller symmetrie kein Palladio-würdiger entwurf dabei - nur öde Einfallslosigkeit.
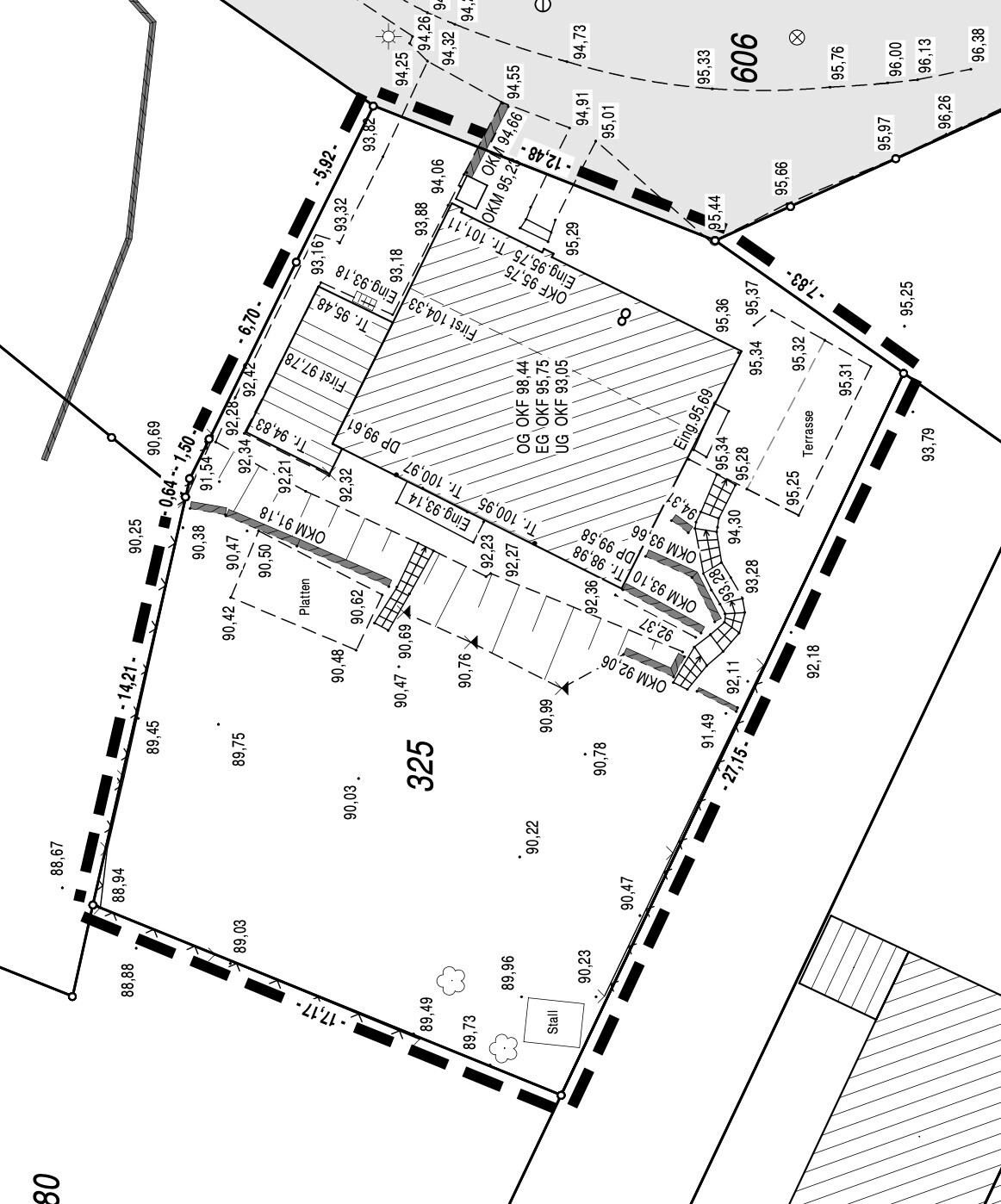
Ohne Lageplan, Gesamtgrundriss, Ausgangslage - Zielbeschreibung kann man zu so einen komplexen Projekt nicht viel sagen.
Der 1,7m hohe Unterbau hat tatsächlich wenig Charme, wenn er als Sitzplatz genutz werden soll - da geht nocht was gestalterisch.
Ohne Lageplan, Gesamtgrundriss, Ausgangslage - Zielbeschreibung kann man zu so einen komplexen Projekt nicht viel sagen.
Der 1,7m hohe Unterbau hat tatsächlich wenig Charme, wenn er als Sitzplatz genutz werden soll - da geht nocht was gestalterisch.
Nice-Nofret schrieb:
Der 1,7m hohe Unterbau hat tatsächlich wenig Charme, wenn er als Sitzplatz genutz werden soll - da geht nocht was gestalterisch.Ich weiß auch nicht recht, welches Kongreßhallen-Zwischengeschoss den Architekten da inspiriert hat. Oder war es die Terrasse eines Eiscafés, auskragend über das Alsterufer gehängt ?https://www.instagram.com/11antgmxde/
https://www.linkedin.com/company/bauen-jetzt/
Also, es handelt sich um ein Zweifamilienhaus mit halbem Keller. Weil das aber ein bissl wenig ist (für 2 Haushalte), muss man sich dann nach oben oder nach hinten attraktiv ausbreiten. Beides wäre generell möglich, §34.
Mein Mann und ich sind zu zweit. Da wir einen völlig unterschiedlichen Rhythmus haben, hätten wir gern 2 Schlafzimmer und ein großzügiges Arbeitszimmer, wo auch noch eine Gästecouch reinpasst. Die andere Wohneinheit benötigt nicht soviel Platz, ist für unser Nesthäkchen gedacht, die gerade ihr Studium abgeschlossen hat. Wir dachten da an 3,5 Zimmer.
Wie bereits angemerkt, bin ich bei Anbauten immer skeptisch. Deshalb wollten wir keinen 08/15 Entwurf, sondern etwas Raffiniertes, was auch durchaus einfach sein kann. Jetzt steht das Haus auf einem Hang, der Garten ist einigermaßen eben. Das Ursprungshaus müsste ebenfalls nahezu kernsaniert werden. Unser aktuelles Haus ist super ausgestattet, da möchte man sich nur ungern verschlechtern. Das Budget dafür haben wir mit 400.000 Euro beziffert. Auch hier beschleichen mich langsam Zweifel, ob das überhaupt realistisch ist?
Danke im Übrigen für die netten Beiträge 🙂 Wenn man gerade etwas ratlos ist, ist das eine große Hilfe. Ich stelle einfach mal Rahmendaten zur Verfügung und wer Lust hat, kann gern schauen und meckern;)
Grundstück: 555
Größe ist: 170 qm plus Teilkeller
Standort: Essen
Größe soll: 60 bis 80 qm zusätzlich und ein Balkon für die obere Wohneinheit
PS: Ob wir einen oberen oder unteren Teil bewohnen, ist uns eigentlich egal.





Mein Mann und ich sind zu zweit. Da wir einen völlig unterschiedlichen Rhythmus haben, hätten wir gern 2 Schlafzimmer und ein großzügiges Arbeitszimmer, wo auch noch eine Gästecouch reinpasst. Die andere Wohneinheit benötigt nicht soviel Platz, ist für unser Nesthäkchen gedacht, die gerade ihr Studium abgeschlossen hat. Wir dachten da an 3,5 Zimmer.
Wie bereits angemerkt, bin ich bei Anbauten immer skeptisch. Deshalb wollten wir keinen 08/15 Entwurf, sondern etwas Raffiniertes, was auch durchaus einfach sein kann. Jetzt steht das Haus auf einem Hang, der Garten ist einigermaßen eben. Das Ursprungshaus müsste ebenfalls nahezu kernsaniert werden. Unser aktuelles Haus ist super ausgestattet, da möchte man sich nur ungern verschlechtern. Das Budget dafür haben wir mit 400.000 Euro beziffert. Auch hier beschleichen mich langsam Zweifel, ob das überhaupt realistisch ist?
Danke im Übrigen für die netten Beiträge 🙂 Wenn man gerade etwas ratlos ist, ist das eine große Hilfe. Ich stelle einfach mal Rahmendaten zur Verfügung und wer Lust hat, kann gern schauen und meckern;)
Grundstück: 555
Größe ist: 170 qm plus Teilkeller
Standort: Essen
Größe soll: 60 bis 80 qm zusätzlich und ein Balkon für die obere Wohneinheit
PS: Ob wir einen oberen oder unteren Teil bewohnen, ist uns eigentlich egal.
Schelli schrieb:
Also, es handelt sich um ein Zweifamilienhaus mit halbem Keller. Weil das aber ein bissl wenig ist (für 2 Haushalte), muss man sich dann nach oben oder nach hinten attraktiv ausbreiten. [...] PS: Ob wir einen oberen oder unteren Teil bewohnen, ist uns eigentlich egal.Nein, denn das Arbeitszimmer und zweite Schlafzimmer sind ja unten, und die Innentreppe führt vom KG ins EG. Also Ihr in KG und OG und andere Leute im EG ginge ja nicht. Aber es geht um überhaupt keine konkrete zweite Bewohnerpartei, ebenso gut könnte man auch nichts anbauen, nur einen Einlieger abteilen und ein Maisonette z.B. aus halbem EG und ganzem OG bewohnen ?https://www.instagram.com/11antgmxde/
https://www.linkedin.com/company/bauen-jetzt/
11ant schrieb:
Nein, denn das Arbeitszimmer und zweite Schlafzimmer sind ja unten, und die Innentreppe führt vom KG ins EG. Also Ihr in KG und OG und andere Leute im EG ginge ja nicht. Aber es geht um überhaupt keine konkrete zweite Bewohnerpartei, ebenso gut könnte man auch nichts anbauen, nur einen Einlieger abteilen und ein Maisonette z.B. aus halbem EG und ganzem OG bewohnen ?Nein, ich schriebSchelli schrieb:
Die andere Wohneinheit benötigt nicht soviel Platz, ist für unser Nesthäkchen gedacht, die gerade ihr Studium abgeschlossen hat. Wir dachten da an 3,5 Zimmer.
PS: Ob wir einen oberen oder unteren Teil bewohnen, ist uns eigentlich egal.Und dann war ja die ursprüngliche Alternative, den Kniestock zu erhöhen und ein nutzbares DG zu schaffen. Dach käme dann eh neuWas hättest Du für ein Gefühl bei dem Budget bei beiden Varianten?
Ähnliche Themen