Hausbau - Ratgeber
Bauherrenhilfe
- Bauherrenhilfe vor Vertragsabschluss
-- Warum einen unabhängigen Baubetreuer?
-- Vertragsgrundlagen
-- Bausumme
-- Zahlungsplan zur Kostenkontrolle
-- Pflichten des Bauherren vor Vertragsabschluss
-- Unterlagen beim Hausbau vor Vertragsabschluss
- Bauherrenhilfe nach Vertragsabschluss
-- Bauantrag bei Behörden
-- Bau-Genehmigungsverfahren bei Baubehörden
-- Bauspezifische Versicherungen
-- Bauzeitenplan
-- Baubeginn - die Letzten Pflichten der Bauherrschaft
- Bauherrenhilfe während der Bauzeit
- Gewährleistungsansprüche
- Bauabnahme
Baufinanzierung
- Baufinanzierung - Allgemeine Fragen
- Kreditarten
- Kredit-Konditionen
- Bausparen
- Staatliche Förderungen
- Verkehrswert
- Haushaltsrechnung und Bonität
Hausbau Planung
- Haustypen
- Hausbau Vorbereitungsarbeiten
- Das Baugrundstück
- Baugrund beim Hausbau
- Baurecht
- Gebäudeschutz
- Erdarbeiten und Wasserhaltung
- Stützmauern
- Einfriedung
- Untergeschoss
- Kanalisation
- Tragende Elemente
- Nichttragende Innenwände
- Fundation / Fundament
- Deckenkonstruktionen
- Dächer
- Kaminanlagen
- Treppen Rampen Leitern
- Dachbeläge und Spengler
- Fenster
- Sonnen und Wetterschutz
- Aussenputze
- Einbauten, Küchen, Türen
- Bodenbeläge und Unterlagsböden
- Parkett
- Gips, Wand, Decke
Haustechnik und Energie
- Heiztechnik
- Lüftung und Klimatechnik
- Sanitärtechnik
- Elektrotechnik
- Erneuerbare Energie
Whirlpools / Jacuzzi
Hausbau Magazin
- Baufinanzierung trotz Krise?
- Das Blockhaus
- Moderne Dämmstoffe im Vergleich
- Erker Vor- und Nachteile
- Glasflächen beim Hausbau
- Günstig ein Haus Bauen
- Mediterraner Hausbaustil
- Mehrgenerationenhaus
- Moderne Architektur
- Gartengestaltung leicht gemacht
- Traditioneller Ziegelbau
- Villa als höchster Traum
- Im Eigenheim Ruhestand geniessen
- Altbau sanieren
- Kauf einer Holzgarage
- Immobilienmakler
- Arbeitshandschuhe für den Winter
- Zuhause verschönern
- Outdoor-Plissees
- Schlafzimmer planen
- Terrassenüberdachung
- Wohngebäudeversicherung
- Girokonto für Bauherren finden
- Hauseingang gestalten
- Zaunarten und Eigenschaften
- Der perfekte Grundriss
- Sparsamer heizen im Altbau
- Einfamilienhaus smart finanzieren
- Planung einer PV-Anlage
- Neues Haus
- Immobilienfinanzierung
- Installation einer Photovoltaikanlage
- Asbest erkennen und entfernen
- Gartenpflege im Frühling – worauf achten
- Sauna im Fokus - Wellness zuhause
- Erfolgreich vermieten
- Die perfekte Winterbekleidung
- Das Niedrigenergiehaus
- Der April und seine Stürme
- Architektonische Vielfalt
- Ökologisch und nachhaltig bauen
- Das perfekte Schlafzimmer
- Nachhaltige Energieversorgung
- Zukunftsorientiert bauen
- Nachhaltigkeit beim Hausbau
- Tiny Houses
- Wärmepumpen als nachhaltige Heizvariante
- Maßgeschneiderten Kleiderschrank
- Der richtige Baukredit
- Ratgeber für erfolgreichen Hausbau
- Haus als Altersvorsorge
Do-it-yourself Anleitungen
- Verlegeanleitung für Bodenbeläge und Parkett
- Bodenbeläge und Parkett reinigen und pflegen
- Malerarbeiten am Haus
- Garten Tipps
- Umzug und Reinigung

ᐅ 12 qm Badezimmer sinnvoll planen

Erstellt am: 25.07.20 10:38
E
Enoibib
Hallo zusammen,

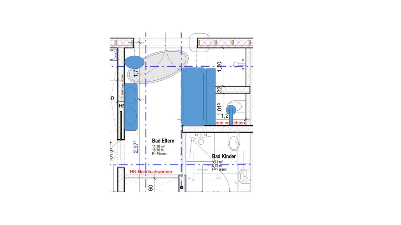
anbei der Grundriss des Elternbades.

Der Zutritt erfolgt bewusst nur durch die Ankleide, die links neben dem Bad liegt.
Durch das Kinderbad ist das Elternbad unten links quasi nicht nutzbar. Die Badewanne ist derzeit als Eckwanne geplant (geht aus dem Plan so noch nicht hervor).

Mein Problem ist nun Folgendes: ich hätte gerne eine Walk-In-Dusche ohne Tür, da wir in einer Gegend mit kalkhaltigem Wasser wohnen werden und putzfaul sind Die Wand zwischen Toilette und Dusche müsste dann aber mE 1,40 m lang sein, um zu viel Wasserspritzen zu vermeiden. Dann wird es aber schon eng mit der Badewanne.
Für eine T- oder L-Lösung ist das Bad mE zu klein.

Wäre es klüger, die Mauer zwischen Toilette und Dusche bei einer Länge von 1,20 m zu belassen und eben doch eine Glastür zur Dusche zu setzen?

Habt ihr vielleicht Ideen oder Anregungen, das Bad anderweitig zu gestalten? Oder ist das hier bereits die sinnvollste Lösung?

Viele Grüße.

Grundriss: Flur mit zwei Bädern (Eltern- und Kinderbad) und Sanitäranlagen.
A
Alessandro
28.07.20 15:35
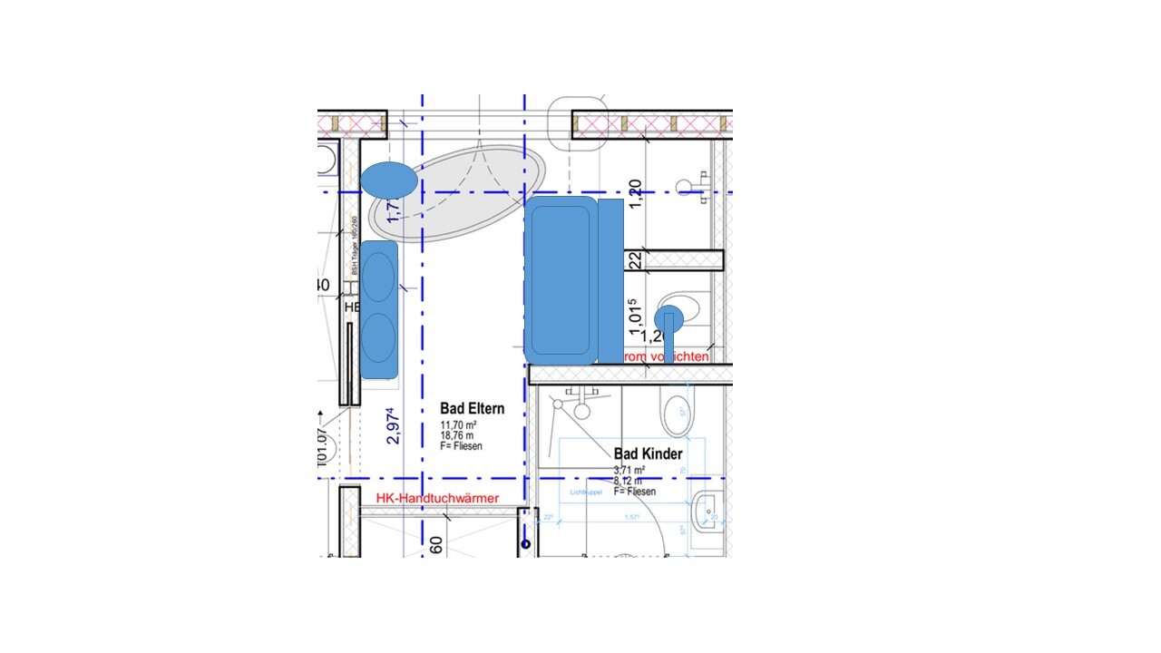
ich würde vermutlich auf meine zweite Variante gehn. Allerdings die Badewanne gerade unter das Fenster, so dass diese nervigen toten Ecken wegfallen, die nichts bringen außer Ärger beim Putzen weil man nicht richtig hinkommt.
Pinky030128.07.20 15:38
Kann man die Wanne gegenüber der Tür setzen? Dann wären noch 90cm Platz zum Durchgehen bei einer 80cm breiten Wanne (wenn die Installationen alle in die Wand zum Kinderbad passen), das sollte doch reichen? Waschbecken ein Stück nach oben schieben zum Fenster, die Duschwand kann dann länger werden. Aber wie lang ist denn die Wand gegenüber der Tür?
E
Enoibib
28.07.20 15:47
Alessandro schrieb:

ich würde vermutlich auf meine zweite Variante gehn. Allerdings die Badewanne gerade unter das Fenster, so dass diese nervigen toten Ecken wegfallen, die nichts bringen außer Ärger beim Putzen weil man nicht richtig hinkommt.

Vielen Dank!
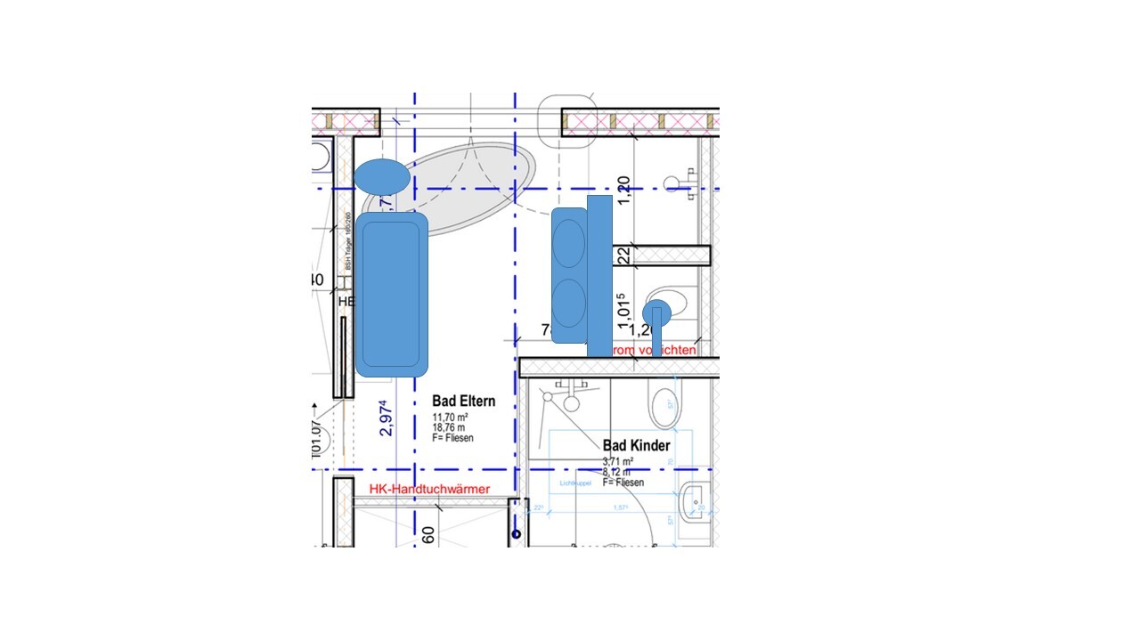
Die Wanne soll gerade wegen der Dreckecken keine freistehende werden. Das ist leider so noch nicht im Plan drin Entweder eine gerade Wanne, was eh mein Favourit wäre (dann aber 1,80x80 oder 190x90), oder eine in der Ecke festgemauerte sozusagen, je nach Platz.
kbt09 schrieb:

Das habe ich leider auch gedacht, als ich den Gesamtgrundriss gesehen habe.

Stimmt, da sollte nichts mehr wegfallen. Wenn man die Tür von Schlafzimmer zum Flur wegließe, könnte man ggf sogar die Ankleide ein wenig verbreitern, da wir eh ein 1,60er breites Bett haben und kein 2 m Bett. Da finde ich die Idee, diese Tür wegzulassen, recht charmant!
E
Enoibib
28.07.20 15:50
Pinky0301 schrieb:

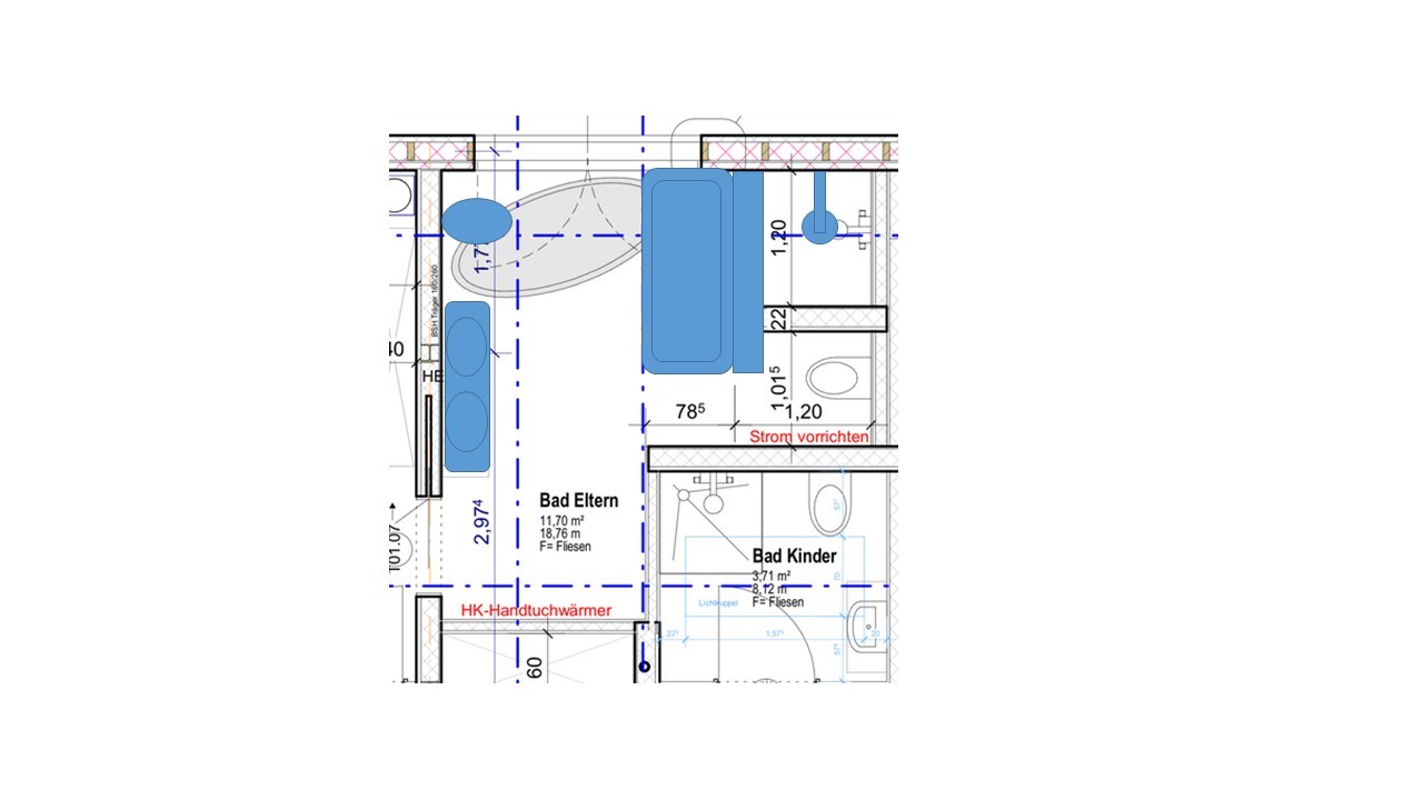
Kann man die Wanne gegenüber der Tür setzen? Dann wären noch 90cm Platz zum Durchgehen bei einer 80cm breiten Wanne (wenn die Installationen alle in die Wand zum Kinderbad passen), das sollte doch reichen? Waschbecken ein Stück nach oben schieben zum Fenster, die Duschwand kann dann länger werden. Aber wie lang ist denn die Wand gegenüber der Tür?

Die Wand ggü der Tür müsste 1,37 m lang sein.
A
Alessandro
28.07.20 15:57

Grundrissplan eines Badezimmers mit separatem Eltern- und Kinderbad, Möbel und Abmessungen.




Grundrissplan: zwei Bäder (Eltern, Kinder) und blaue Möbel im Wohn-/Badbereich.
A
Alessandro
28.07.20 16:00

Grundriss zweier Bäder: Eltern- und Kinderbad mit Badewanne, Toilette, Waschbecken und Fliesen.
türwannefensterbett