Hausbau - Ratgeber
Bauherrenhilfe
- Bauherrenhilfe vor Vertragsabschluss
-- Warum einen unabhängigen Baubetreuer?
-- Vertragsgrundlagen
-- Bausumme
-- Zahlungsplan zur Kostenkontrolle
-- Pflichten des Bauherren vor Vertragsabschluss
-- Unterlagen beim Hausbau vor Vertragsabschluss
- Bauherrenhilfe nach Vertragsabschluss
-- Bauantrag bei Behörden
-- Bau-Genehmigungsverfahren bei Baubehörden
-- Bauspezifische Versicherungen
-- Bauzeitenplan
-- Baubeginn - die Letzten Pflichten der Bauherrschaft
- Bauherrenhilfe während der Bauzeit
- Gewährleistungsansprüche
- Bauabnahme
Baufinanzierung
- Baufinanzierung - Allgemeine Fragen
- Kreditarten
- Kredit-Konditionen
- Bausparen
- Staatliche Förderungen
- Verkehrswert
- Haushaltsrechnung und Bonität
Hausbau Planung
- Haustypen
- Hausbau Vorbereitungsarbeiten
- Das Baugrundstück
- Baugrund beim Hausbau
- Baurecht
- Gebäudeschutz
- Erdarbeiten und Wasserhaltung
- Stützmauern
- Einfriedung
- Untergeschoss
- Kanalisation
- Tragende Elemente
- Nichttragende Innenwände
- Fundation / Fundament
- Deckenkonstruktionen
- Dächer
- Kaminanlagen
- Treppen Rampen Leitern
- Dachbeläge und Spengler
- Fenster
- Sonnen und Wetterschutz
- Aussenputze
- Einbauten, Küchen, Türen
- Bodenbeläge und Unterlagsböden
- Parkett
- Gips, Wand, Decke
Haustechnik und Energie
- Heiztechnik
- Lüftung und Klimatechnik
- Sanitärtechnik
- Elektrotechnik
- Erneuerbare Energie
Whirlpools / Jacuzzi
Hausbau Magazin
- Baufinanzierung trotz Krise?
- Das Blockhaus
- Moderne Dämmstoffe im Vergleich
- Erker Vor- und Nachteile
- Glasflächen beim Hausbau
- Günstig ein Haus Bauen
- Mediterraner Hausbaustil
- Mehrgenerationenhaus
- Moderne Architektur
- Gartengestaltung leicht gemacht
- Traditioneller Ziegelbau
- Villa als höchster Traum
- Im Eigenheim Ruhestand geniessen
- Altbau sanieren
- Kauf einer Holzgarage
- Immobilienmakler
- Arbeitshandschuhe für den Winter
- Zuhause verschönern
- Outdoor-Plissees
- Schlafzimmer planen
- Terrassenüberdachung
- Wohngebäudeversicherung
- Girokonto für Bauherren finden
- Hauseingang gestalten
- Zaunarten und Eigenschaften
- Der perfekte Grundriss
- Sparsamer heizen im Altbau
- Einfamilienhaus smart finanzieren
- Planung einer PV-Anlage
- Neues Haus
- Immobilienfinanzierung
- Installation einer Photovoltaikanlage
- Asbest erkennen und entfernen
- Gartenpflege im Frühling – worauf achten
- Sauna im Fokus - Wellness zuhause
- Erfolgreich vermieten
- Die perfekte Winterbekleidung
- Das Niedrigenergiehaus
- Der April und seine Stürme
- Architektonische Vielfalt
- Ökologisch und nachhaltig bauen
- Das perfekte Schlafzimmer
- Nachhaltige Energieversorgung
- Zukunftsorientiert bauen
- Nachhaltigkeit beim Hausbau
- Tiny Houses
- Wärmepumpen als nachhaltige Heizvariante
- Maßgeschneiderten Kleiderschrank
- Der richtige Baukredit
- Ratgeber für erfolgreichen Hausbau
- Haus als Altersvorsorge
Do-it-yourself Anleitungen
- Verlegeanleitung für Bodenbeläge und Parkett
- Bodenbeläge und Parkett reinigen und pflegen
- Malerarbeiten am Haus
- Garten Tipps
- Umzug und Reinigung

ᐅ 12 qm Badezimmer sinnvoll planen

Erstellt am: 25.07.20 10:38
E
Enoibib
Hallo zusammen,

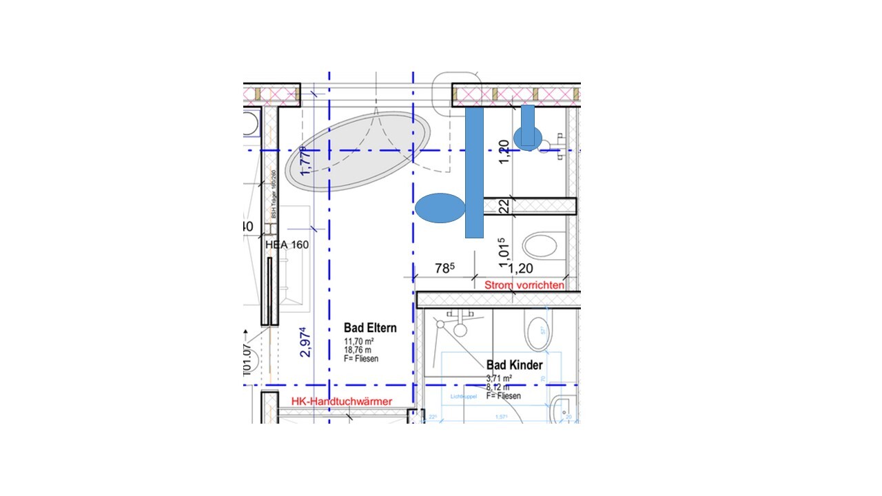
anbei der Grundriss des Elternbades.

Der Zutritt erfolgt bewusst nur durch die Ankleide, die links neben dem Bad liegt.
Durch das Kinderbad ist das Elternbad unten links quasi nicht nutzbar. Die Badewanne ist derzeit als Eckwanne geplant (geht aus dem Plan so noch nicht hervor).

Mein Problem ist nun Folgendes: ich hätte gerne eine Walk-In-Dusche ohne Tür, da wir in einer Gegend mit kalkhaltigem Wasser wohnen werden und putzfaul sind Die Wand zwischen Toilette und Dusche müsste dann aber mE 1,40 m lang sein, um zu viel Wasserspritzen zu vermeiden. Dann wird es aber schon eng mit der Badewanne.
Für eine T- oder L-Lösung ist das Bad mE zu klein.

Wäre es klüger, die Mauer zwischen Toilette und Dusche bei einer Länge von 1,20 m zu belassen und eben doch eine Glastür zur Dusche zu setzen?

Habt ihr vielleicht Ideen oder Anregungen, das Bad anderweitig zu gestalten? Oder ist das hier bereits die sinnvollste Lösung?

Viele Grüße.

Grundriss: Flur mit zwei Bädern (Eltern- und Kinderbad) und Sanitäranlagen.
Pinky030127.07.20 20:05
Braucht man die Tür vom Schlafzimmer zum Flur? Ich würde es nur über die Ankleide begehbar machen, bietet dann noch etwas Lärmschutz.
E
Enoibib
27.07.20 23:25
Pinky0301 schrieb:

Braucht man die Tür vom Schlafzimmer zum Flur? Ich würde es nur über die Ankleide begehbar machen, bietet dann noch etwas Lärmschutz.

Stimmt, gute Idee, das überlege ich mir nochmal!
E
Enoibib
28.07.20 14:57
Hat denn sonst noch jemand Ideen?
Ggf kann man auch irgendwie das Elternbad und Kinderbad anders schneiden. Wichtig dabei ist nur, dass das Kinderbad vom Flur aus zu begehen ist und das EBad aus der Ankleide.
A
Alessandro
28.07.20 15:30
ich würde auf eine dieser Varianten gehn. Das Klo hängt zwar im Raum, allerdings kannst du es dir nicht leisten, Platz aus der Ankleide durch das Verschieben der Tür zu opfern


Grundriss eines Badezimmer-Layouts mit Elternbad und Kinderbad, Badewanne und Toilette



Grundrissplan: Zwei Badezimmer (Eltern/Kind) mit Badewanne, Toilette, Waschbecken, Heizkörper.
K
kbt09
28.07.20 15:32
Alessandro schrieb:

allerdings kannst du es dir nicht leisten, Platz aus der Ankleide durch das Verschieben der Tür zu opfern
Das habe ich leider auch gedacht, als ich den Gesamtgrundriss gesehen habe.
Pinky030128.07.20 15:35
Ja, die Tür sollte so bleiben. Ich finde den Ursprungsgrundriss nicht schlecht. Nur eine Eckbadewanne finde ich nicht so prickelnd, passt da nicht auch eine normal hin?
türankleideflurkinderbad