ZwuselSepp
18/04/2019 09:27:37
- #1
हैलो कम्युनिटी,
मेरा बहुत छोटा बाथरूम नवीनीकरण के विचारों में मुझे समस्या दे रहा है। मैं बाथटब को शॉवर से बदलना चाहता हूँ।
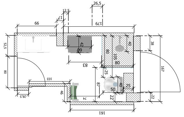
समस्या यह है कि टॉयलेट के ऊपर बाएं एक एकपंखीय खिड़की बाएं से खुलती है। मैं इसे बदलना नहीं चाहता (स्वामित्व वाली अपार्टमेंट)। फर्श से खिड़की के सिमस तक की ऊँचाई 86 सेमी है, खिड़की की ऊँचाई 142 सेमी है और स्टर्ज़ की ऊँचाई 24 सेमी है। मेरी समस्या, आदि में, लगाव के विकल्प हैं।
मैं योजना की स्केच संलग्न कर रहा हूँ। क्या किसी ने पहले इसी तरह के विचार किए हैं और अच्छे समाधान के सुझाव दिए हैं? यह मेरी बहुत मदद करेगा :-)
धन्यवाद
Zwusel



मेरा बहुत छोटा बाथरूम नवीनीकरण के विचारों में मुझे समस्या दे रहा है। मैं बाथटब को शॉवर से बदलना चाहता हूँ।
समस्या यह है कि टॉयलेट के ऊपर बाएं एक एकपंखीय खिड़की बाएं से खुलती है। मैं इसे बदलना नहीं चाहता (स्वामित्व वाली अपार्टमेंट)। फर्श से खिड़की के सिमस तक की ऊँचाई 86 सेमी है, खिड़की की ऊँचाई 142 सेमी है और स्टर्ज़ की ऊँचाई 24 सेमी है। मेरी समस्या, आदि में, लगाव के विकल्प हैं।
मैं योजना की स्केच संलग्न कर रहा हूँ। क्या किसी ने पहले इसी तरह के विचार किए हैं और अच्छे समाधान के सुझाव दिए हैं? यह मेरी बहुत मदद करेगा :-)
धन्यवाद
Zwusel