baumann2013
23/02/2015 21:07:11
- #1
नमस्ते सभी को,
हम अपने निर्माण कार्य की शुरुआत के करीब हैं। हमारे खोपड़ी屋 की ज़मीन की योजना से हम संतुष्ट हैं, लेकिन हम फिर से सोचने लगे हैं कि क्या दोनों बच्चों के कमरे (ऊपरी मंजिल) के खिड़कियों का आकार पर्याप्त है। इसलिए मैं आपकी राय लेना चाहूंगा।
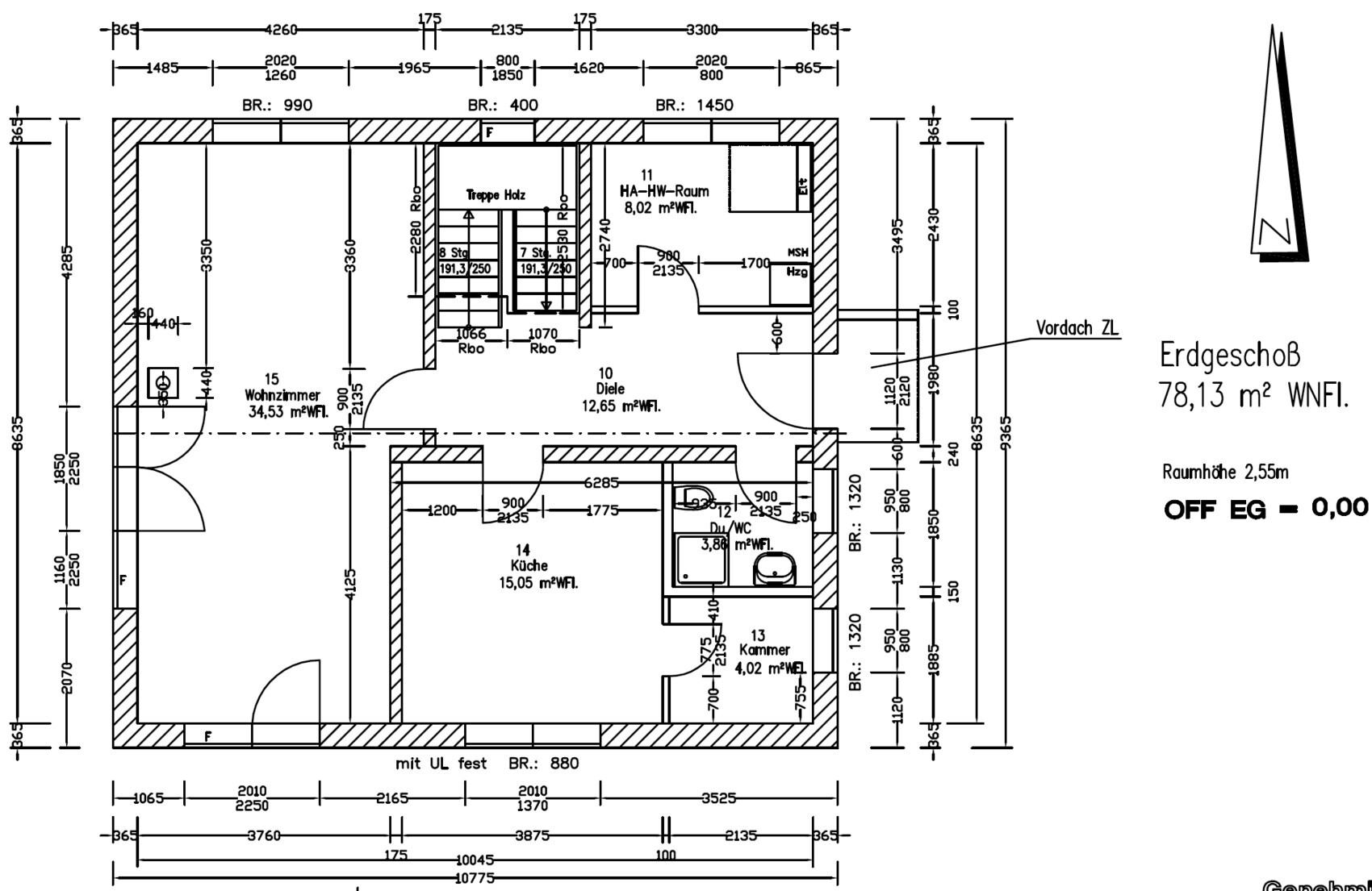
संलग्न में आप ज़मीन की योजना और सभी घर के दृश्य देख सकते हैं। सभी 4 ऊपरी मंजिल की खिड़कियों के लिए मांग थी "फर्श तक पहुंचने वाला, नीचे फिक्स्ड पार्ट के साथ" और "एक पंखा वाला"। वर्तमान में, उत्तर तरफ बाथरूम में और दक्षिण तरफ गेस्ट रूम में एक छत की खिड़की है। हमें ऐसा लगता है कि दोनों बच्चों के कमरे में और अधिक रोशनी होनी चाहिए ताकि वे कमरे बहुत अंधेरे न लगें। खिड़कियों की चौड़ाई को बढ़ाना कम से कम पूर्व दिशा की तरफ से घर के बाहरी रूप से उपयुक्त नहीं है।
अब सवाल है: क्या बच्चों के कमरे में एक और छत की खिड़की जोड़ना उचित होगा या कुछ ऐसी बात है जो इसे रोकती है? तब घर में कुल 4 छत की खिड़कियां होंगी और मुझे यह कुछ ज्यादा लग रहा है। या खिड़कियों की चौड़ाई और ऊंचाई शायद काफी है?
आपकी राय के लिए मैं बहुत आभारी रहूंगा।
सादर
baumann2013






हम अपने निर्माण कार्य की शुरुआत के करीब हैं। हमारे खोपड़ी屋 की ज़मीन की योजना से हम संतुष्ट हैं, लेकिन हम फिर से सोचने लगे हैं कि क्या दोनों बच्चों के कमरे (ऊपरी मंजिल) के खिड़कियों का आकार पर्याप्त है। इसलिए मैं आपकी राय लेना चाहूंगा।
संलग्न में आप ज़मीन की योजना और सभी घर के दृश्य देख सकते हैं। सभी 4 ऊपरी मंजिल की खिड़कियों के लिए मांग थी "फर्श तक पहुंचने वाला, नीचे फिक्स्ड पार्ट के साथ" और "एक पंखा वाला"। वर्तमान में, उत्तर तरफ बाथरूम में और दक्षिण तरफ गेस्ट रूम में एक छत की खिड़की है। हमें ऐसा लगता है कि दोनों बच्चों के कमरे में और अधिक रोशनी होनी चाहिए ताकि वे कमरे बहुत अंधेरे न लगें। खिड़कियों की चौड़ाई को बढ़ाना कम से कम पूर्व दिशा की तरफ से घर के बाहरी रूप से उपयुक्त नहीं है।
अब सवाल है: क्या बच्चों के कमरे में एक और छत की खिड़की जोड़ना उचित होगा या कुछ ऐसी बात है जो इसे रोकती है? तब घर में कुल 4 छत की खिड़कियां होंगी और मुझे यह कुछ ज्यादा लग रहा है। या खिड़कियों की चौड़ाई और ऊंचाई शायद काफी है?
आपकी राय के लिए मैं बहुत आभारी रहूंगा।
सादर
baumann2013