अटारी मंजिल का कमरा वितरण - हमारे पास विचार खत्म हो रहे हैं...

  • Erstellt am 24/03/2019 18:15:20

LMN2018

24/03/2019 18:15:20
  • #1

नमस्ते सभी को,

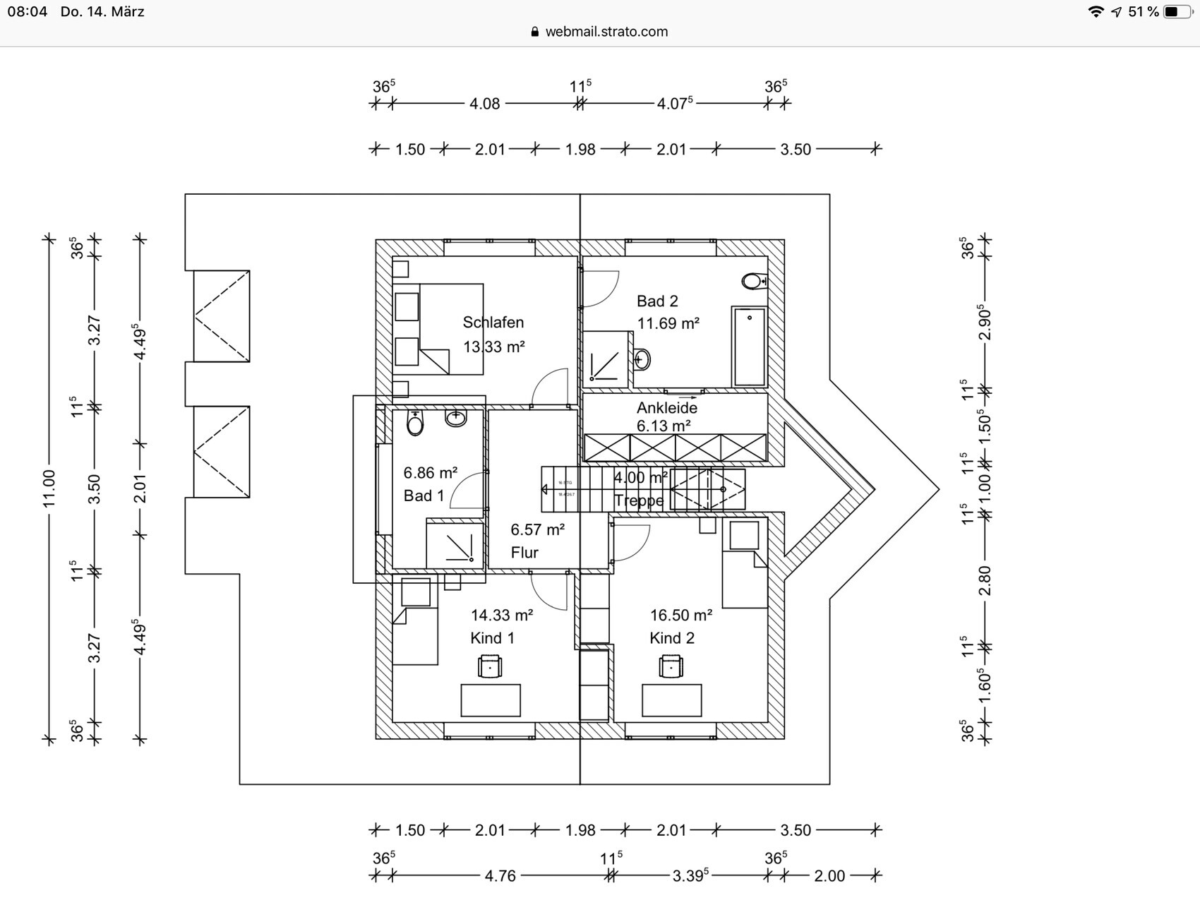
दुर्भाग्यवश, हम अपने एकल-परिवार के घर की योजना में अब डाक (DG) के साथ आगे नहीं बढ़ पा रहे हैं। मैंने जानबूझकर सिर्फ डाक (DG) अपलोड किया है और पूरी पसंदीदा फोरम सूची शामिल नहीं की क्योंकि हमें केवल इस योजना में मदद चाहिए। जो तथ्य मैं बता सकता हूं, वे हैं:

• 1.60 मीटर की कनीस्टॉक के साथ सैटलडच
• सीधे सीढ़ी हमारी प्राथमिकता है, क्योंकि फर्नीचर ले जाना इससे आसान होता है (हमारे वर्तमान घर में हमारे पास आधा घूमने वाली U शेप की सीढ़ी है, जो हम नहीं चाहते) यह निश्चित ही बहुत जगह लेती है।
• माता-पिता का बाथरूम और बच्चों का बाथरूम हमारे लिए अनिवार्य हैं (दोनों में टाइल लगी वॉक-इन डुश हो, और अब ज्यादा ग्लास न हो!)
• सोने का कमरा, ड्रेसिंग रूम और माता-पिता का बाथरूम क्रम में योजना बनाना चाहिए (शिफ्ट ड्यूटी, अलग-अलग जागने का समय, ड्रेसिंग रूम को बाथरूम के लिए ध्वनि अवरोधक के रूप में उपयोग करना) सबसे अच्छा होगा यदि फ्लोर से ड्रेसिंग रूम होते हुए सोने और बाथरूम तक पहुंच हो।
• ड्रेसिंग रूम में आदर्श रूप से 4 मीटर का वार्डरोब फिट होना चाहिए (छत की ढलान को संभवतः घटा कर)

दो योजनाएँ हमारे वास्तुकार द्वारा बने विकल्प दिखाती हैं, जो अभी पूरी तरह से उपयुक्त नहीं हैं। हमें पता है कि बहुत सारी आवश्यकताएं हैं। हमने सब कुछ डिज़ाइन करने की कोशिश की है, पर हम एक अच्छी योजना पर नहीं पहुँच पा रहे हैं।

• क्या सुंदर गौब को ड्रेसिंग रूम के रूप में उपयोग करना चाहिए?
• क्या सीधे सीढ़ी डाक (DG) में जगह का सबसे बड़ा नुकसान है, क्या योजना तब आसान होगी?

क्या ये सब संभव है या हम बहुत अधिक कल्पनाशील सोच रहे हैं? शायद किसी के पास समान योजना हो या कोई बचाव की विचारधारा हो!?

शुरुआत में ही आपका बहुमूल्य धन्यवाद!
 

kaho674

24/03/2019 19:00:15
  • #2
बिना EG के कोई नहीं जानता कि जल निकासी कहाँ सही तरीके से संभव होगी। इसके अलावा, सीढ़ी में क्या बचा है, चाहे केवल सेमी हो, यह भी दिखाई नहीं देता। दिशाएँ भी नहीं दिखाई देतीं।
 

kbt09

24/03/2019 19:22:36
  • #3
और, शायद मैं अभी बहुत ही बेवकूफी कर रहा हूँ, लेकिन मैं दाहिने कोने को समझ नहीं पा रहा हूँ और चारों ओर की बनी हुई रेखा भी नहीं। 2-मीटर की रेखा भी दिखाई नहीं दे रही है।

और, केवल बाथरूम के माध्यम से ही वॉर्डरोब जाना सही समाधान नहीं होना चाहिए।

संपादित करें:
और चेकलिस्ट का अपना मतलब है... बच्चे कितने पुराने हैं? माता-पिता के बाथरूम में बाथटब क्यों है और बच्चों के बाथरूम में नहीं, आदि।
 

ypg

24/03/2019 19:43:12
  • #4


ऐसा ही है: बिना हाथ-पैर के कुकीज़ नहीं मिलतीं।
क्यों भी क्यों सामने बाएं और पीछे दाएं, जितना संभव हो दूर-दूर, बाथरूम होने चाहिए?!



यह वहाँ का प्रवेश द्वार होगा।
 

LMN2018

24/03/2019 19:47:46
  • #5

 

kbt09

24/03/2019 19:48:13
  • #6
और, अगर दाहिने कोने में प्रवेश है और यह ऊपर के मंजिल तक बढ़ाई जाती है ... तो यह तो एक छेद है।
 

समान विषय
30.01.2015मूल योजना - राय और सुधार सुझाव...19
06.01.2015सीढ़ी कहां रखनी है? अटारी विस्तार, हिप-रूफ बंगला19
23.01.2015फ्लोर प्लानिंग - बैडरूम और ड्रेसिंग रूम कैसे व्यवस्थित करें?11
08.01.2018हॉलवे में सीढ़ी, मूल योजना तो असल में पहले से ही है :o(20
07.03.2015सीढ़ी बनाते समय किन बातों का ध्यान रखना चाहिए / मोड़ में अंतर क्या हैं?22
07.09.2015ड्रेसिंग रूम में वॉशिंग मशीन और ड्रायर?16
10.02.2016क्लोसेट वाले स्मार्ट बेडरूम आइडिया की तलाश है19
02.05.2016सीढ़ी की मंजिल योजना, क़दम और नीचे का तख्ता21
17.10.2017एकल परिवार का घर लगभग 150 वर्ग मीटर मंज़िल योजना - सीढ़ी कैसे योजना बनाएं?65
24.09.2018सीधी सीढ़ी वाला सिटी विला, खुला आधुनिक डिजाइन, 140 वर्ग मीटर18
02.07.2018लिविंग रूम में सीढ़ी के रूप में हाइप - पक्ष और विपक्ष?26
30.01.2019प्रवेश का ग्राउंड प्लान, कौन सा सीढ़ी विकल्प31
09.12.2019बाथरूम योजना: गेस्ट बाथरूम को बच्चों के बाथरूम के साथ मिलाएं?28
02.04.2020माता-पिता का बाथरूम + बच्चों के बाथरूम की व्यवस्था101
03.12.2020नए निर्माण में बाथरूम योजना (माता-पिता + बच्चों का बाथरूम)35
03.08.2021बाथरूम और ड्रेसिंग रूम बिना दरवाज़े के?12
22.09.2021शयनकक्ष, सजावटी कक्ष और स्व-लगे बाथरूम का मंज़िल योजना36
26.03.2023बेडरूम का फ्लोर प्लान जिसमें बाथरूम और ड्रेसिंग रूम हो62
01.07.2023लेआउट प्रश्न: सीधी सीढ़ी को एल-आकार की सीढ़ी से बदलना31

Oben