KatharinaHuber
23.08.2021 20:59:28
- #1
Bonsoir,
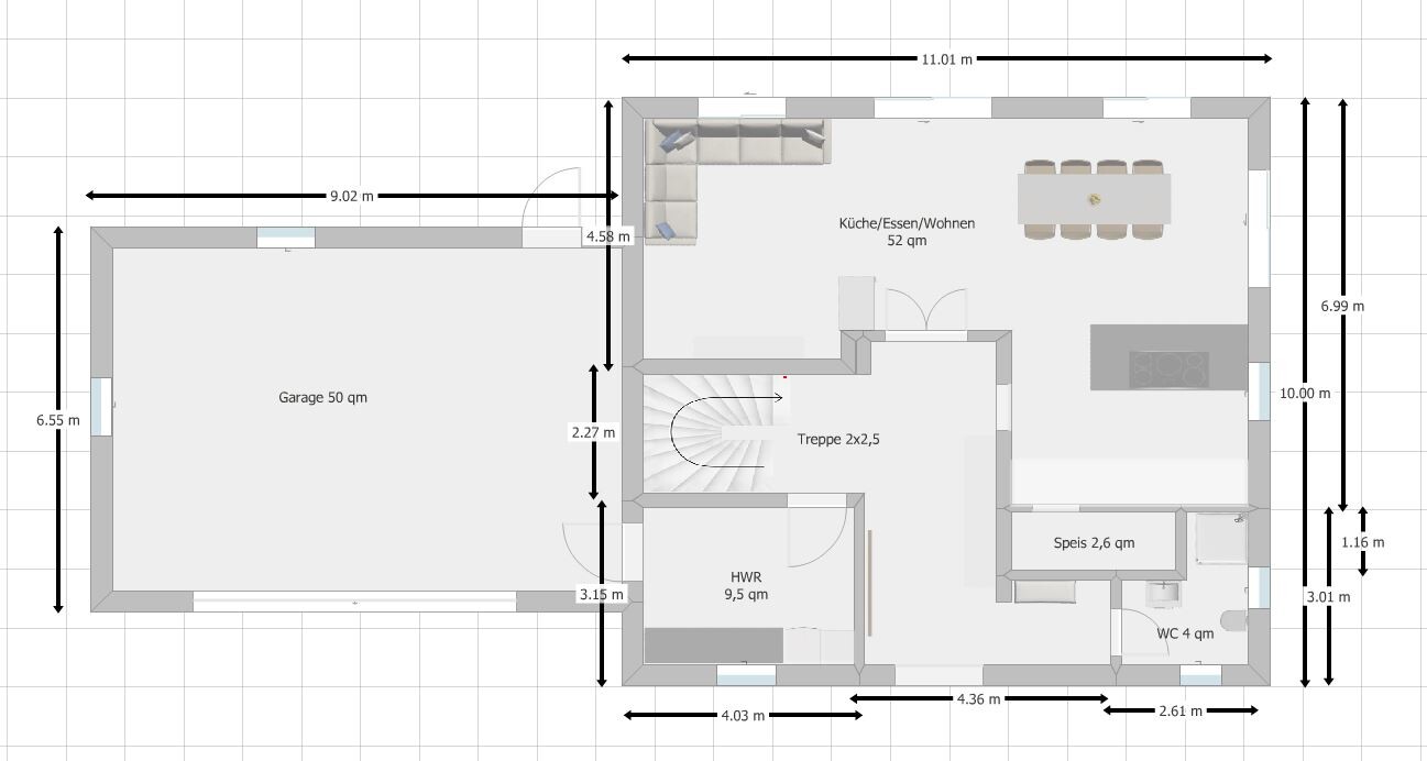
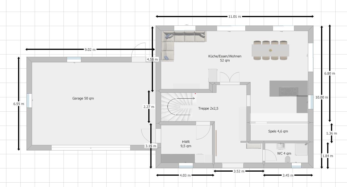
nous sommes en train de planifier le plan d'étage et nous serions heureux d'avoir vos avis/suggestions d'amélioration concernant la répartition des pièces. Pour le rez-de-chaussée, nous avons trois variantes.
Quelques données clés :
- Cave
- Toit en croupe
- Terrain de 670 m²
Merci d'avance.
Cordialement
Katharina




nous sommes en train de planifier le plan d'étage et nous serions heureux d'avoir vos avis/suggestions d'amélioration concernant la répartition des pièces. Pour le rez-de-chaussée, nous avons trois variantes.
Quelques données clés :
- Cave
- Toit en croupe
- Terrain de 670 m²
Merci d'avance.
Cordialement
Katharina