iundf2021
10.01.2021 12:35:00
- #1
Bonjour cher forum de construction de maison,
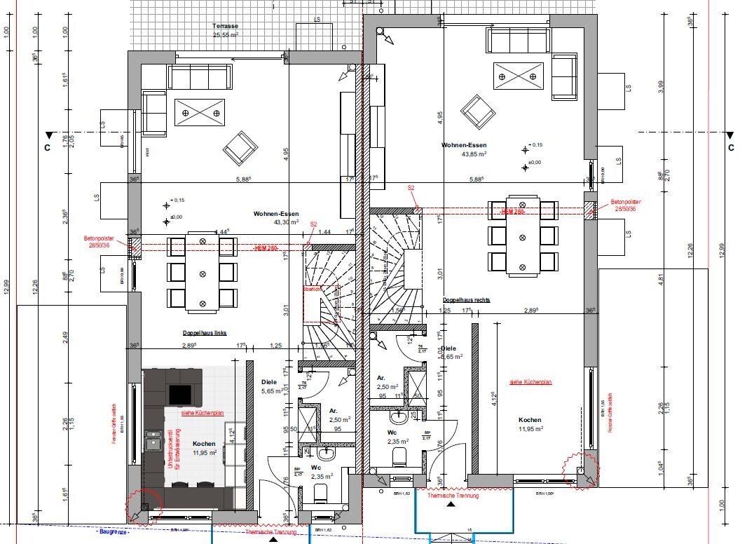
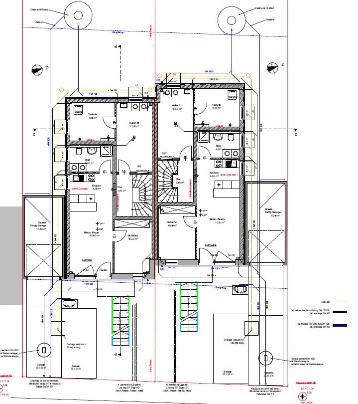
nous construisons une maison jumelée en Hesse, et actuellement nous avons le planning de montage.
Je serais très heureux d’avoir votre avis / votre retour sur la planification.
Le plan de base n’est plus à discuter, la demande de permis de construire est déjà approuvée, les premiers travaux de statique ont déjà été effectués.
Nous avons encore un peu de mal avec « les salles de bains parfaites », peut-être avez-vous des suggestions. Aussi, tout ce qui vous paraît important, j’aimerais le recueillir et l’emmener lors de la validation du planning de montage avec l’architecte.
Je suis impatient de découvrir votre expertise !






nous construisons une maison jumelée en Hesse, et actuellement nous avons le planning de montage.
Je serais très heureux d’avoir votre avis / votre retour sur la planification.
Le plan de base n’est plus à discuter, la demande de permis de construire est déjà approuvée, les premiers travaux de statique ont déjà été effectués.
Nous avons encore un peu de mal avec « les salles de bains parfaites », peut-être avez-vous des suggestions. Aussi, tout ce qui vous paraît important, j’aimerais le recueillir et l’emmener lors de la validation du planning de montage avec l’architecte.
Je suis impatient de découvrir votre expertise !