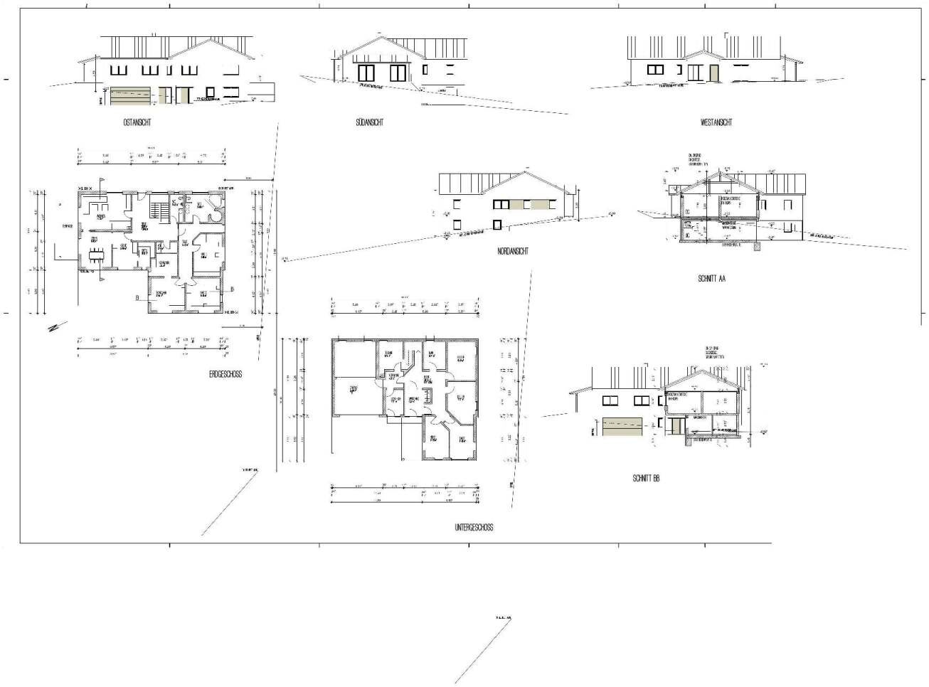
Plano para casa en pendiente con garaje integrado

  • Erstellt am 17.12.2013 21:51:02

da andere

17.12.2013 21:51:02
  • #1
Hola,

aquí veis mi plano de planta para nuestra casa para discusión o crítica constructiva.

Gracias

 

Wastl

18.12.2013 10:50:24
  • #2
un poco difícil de leer. En la planta baja tienes 2 pasillos uno tras otro, ¿verdad? Primero al área de entrada y luego a la derecha al área de estar. ¿Para qué sirve el 2º pasillo que llega hasta la pared de la casa? entre el baño y una de las habitaciones.
 
Oben